EasyManua.ls Logo

LG MULTI V ARNU073M1A4 - Low-Static Ducted L1 Chassis

LG MULTI V ARNU073M1A4
82 pages
Print Icon
To Next Page IconTo Next Page
To Next Page IconTo Next Page
To Previous Page IconTo Previous Page
To Previous Page IconTo Previous Page
Loading...
66
Multi V Ducted Indoor Units
Due to our policy of continuous product innovation, some specifications may change without notification.
©LG Electronics U.S.A., Inc., Englewood Cliffs, NJ. All rights reserved. “LG” is a registered trademark of LG Corp.
WIRING
Low-Static Ducted L1 Chassis
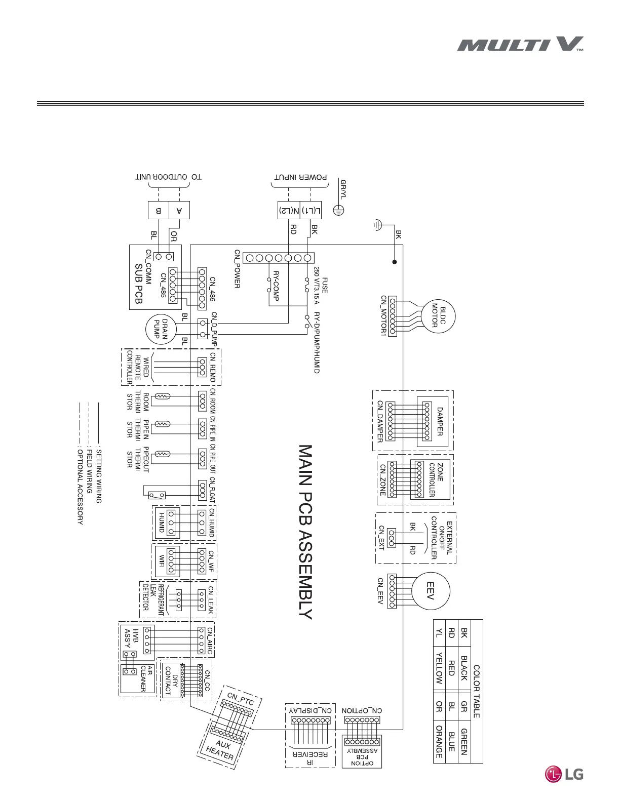
Figure 59: Low-Static Ducted L1 Chassis Wiring Diagram
Optional Connections
Figure 59 shows the control board for the L1 chassis. Connect optional equipment to the control board as required for your system.

Table of Contents

Related product manuals