EasyManua.ls Logo

LG MULTI V ARNU09GSBL4 - Page 71

LG MULTI V ARNU09GSBL4
520 pages
To Next Page IconTo Next Page
To Next Page IconTo Next Page
To Previous Page IconTo Previous Page
To Previous Page IconTo Previous Page
Loading...
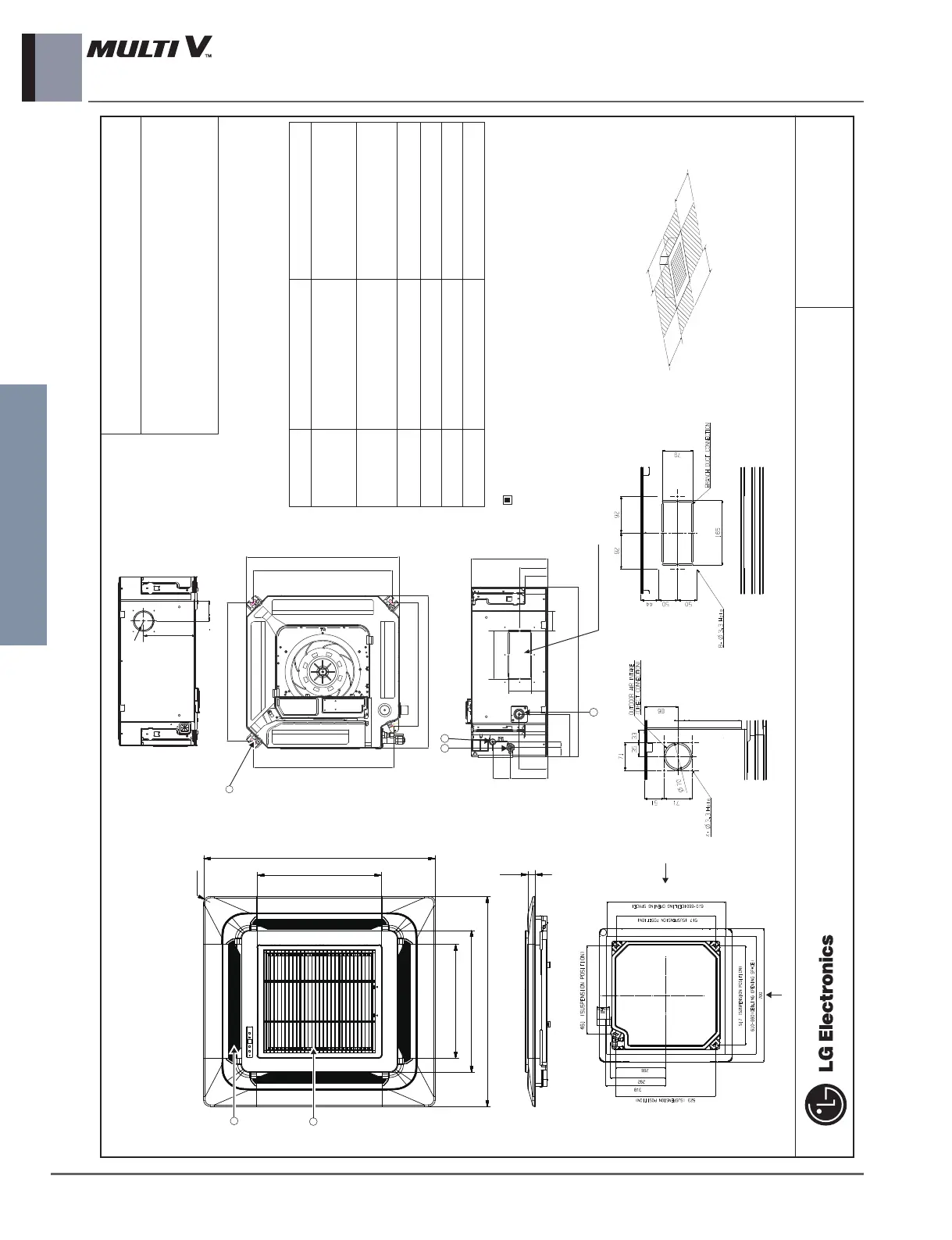
Indoor unit
8 _ Ceiling Cassette 4-way
Indoor Units
3. Dimensions
CHASSIS CODE: TQ
Ceiling Cassette 4-way
ARNU15GTQ*4
ARNU18GTQ*4
ARNU21GTQ*4
Name
1 Liquid pipe connection
2 Gas pipe connection
3 Drain pipe connection
4 Power supply connection
5 Air discharge grill
6 Air suction grill
Number Descripition
Note
1. Unit should be installed in compliance with the installation manual
in the product box.
2. Unit shall be grounded in accordance with the local regulations or
applicable national codes.
(unit : mm)
570
570
517
68
174
517
461
523
30 19
142.5
165
63
95.5
79
48
125 59.5
570
76
94
256
2
4
3
1
Branch Duct Connection
R
35
700
22
380(Air outlet hole)
473
700
376(Inlet Grille)
4R20
5
6
B ARROW VIEWA ARROW VIEW
B
A
VP25(Φ32)
Unit size(15k, 18k) : Ø6.35
Unit size(21k) : Ø9.52
Unit size(15k, 18k) : Ø12.7
Unit size(21k) : Ø15.88
CEILING OPENING
500mm or more*
500mm or more*
• REQUIRED SPACE
500mm or more*
500mm or more*

Table of Contents

Related product manuals