EasyManua.ls Logo

LG MULTI V ARNU76GB8A4 - Page 219

LG MULTI V ARNU76GB8A4
520 pages
Print Icon
To Next Page IconTo Next Page
To Next Page IconTo Next Page
To Previous Page IconTo Previous Page
To Previous Page IconTo Previous Page
Loading...
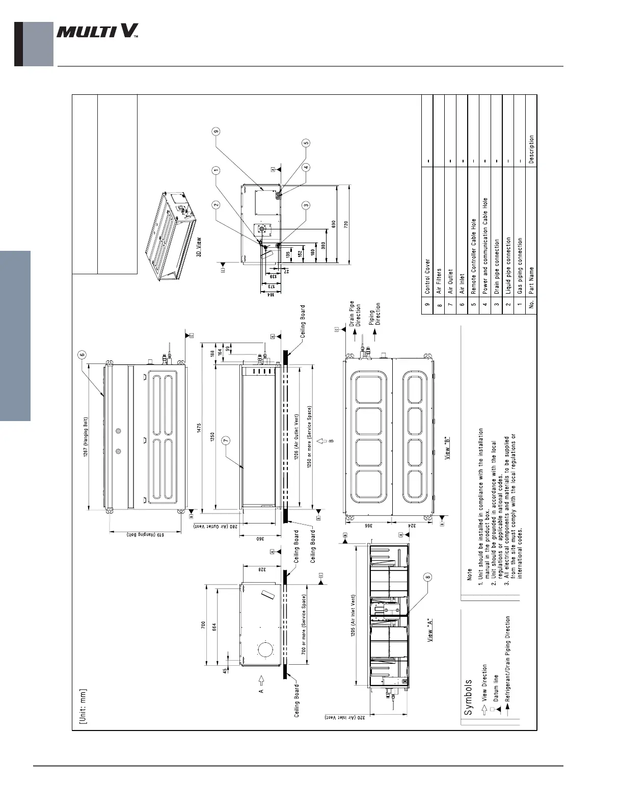
3. Dimensions & Gravity point
Indoor unit
8 _ Ceiling Concealed Duct(Middle Static)
Indoor Units
M3 Chassis
ARNU48GM3A4
ARNU54GM3A4
Supplied with product

Table of Contents

Other manuals for LG MULTI V ARNU76GB8A4

Related product manuals