EasyManua.ls Logo

LG MULTI V ARNU76GB8A4 - Page 74

LG MULTI V ARNU76GB8A4
520 pages
Print Icon
To Next Page IconTo Next Page
To Next Page IconTo Next Page
To Previous Page IconTo Previous Page
To Previous Page IconTo Previous Page
Loading...
Indoor unit
Ceiling Cassette 4-way _ 11
Indoor Units
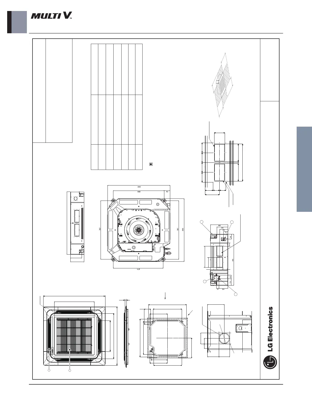
3. Dimensions
CHASSIS CODE: TM
Ceiling Cassette 4-way
ARNU42GTM*4
ARNU48GTM*4
ARNU54GTM*4
Note
1. Unit should be installed in compliance with the installation manual
in the product box.
2. Unit shall be grounded in accordance with the local regulations or
applicable national codes.
Name
1
Liquid pipe connection Unit size(42k, 48k):ø9.52
2
Gas pipe connection Unit size(42k, 48k):ø15.88
3
Drain pipe connection
4
Power supply connection
5
Air discharge grill
6
Air suction grill
Number Descripition
(unit : mm)
4
3
1
2
840
288
237
Branch Duct Connection
350
53.5
100
84
165
950
25
614(Inlet Grille)
500(Air outlet Hole)
4-R20
737
950
5
6
OUTDOOR AIR INTAKE
(DIRECT CONNECTION)
13-
ø
3, 3 Hole
ø70
71 75
110
71
31
35
B ARROW VIEW
BRANCH DUCT
CONNECTION
BRANCH DUCTCONNECTION
13-
ø
3, 3 Hole
60 60
76
136
92 92 92 92
350
165 165
10
100
A ARROW VIEW
475
420
420
393
870-920(CEILING OPENING SPACE)
786(SUSPENSION POSITION)
300
OR LESS
682(SUSPENSION POSITION)
669(SUSPENSION POSITION)
870-920(CEILING OPENING SPACE)
Ceiling opening
B
A
VP25(Φ32)
500mm or more*
500mm or more*
• REQUIRED SPACE
500mm or more*
500mm or more*

Table of Contents

Other manuals for LG MULTI V ARNU76GB8A4

Related product manuals