EasyManua.ls Logo

Lochinvar 151 - 13 Diagrams; Ladder Diagram

Lochinvar 151
76 pages
Print Icon
To Next Page IconTo Next Page
To Next Page IconTo Next Page
To Previous Page IconTo Previous Page
To Previous Page IconTo Previous Page
Loading...
Installation & Operation Manual
13 Diagrams
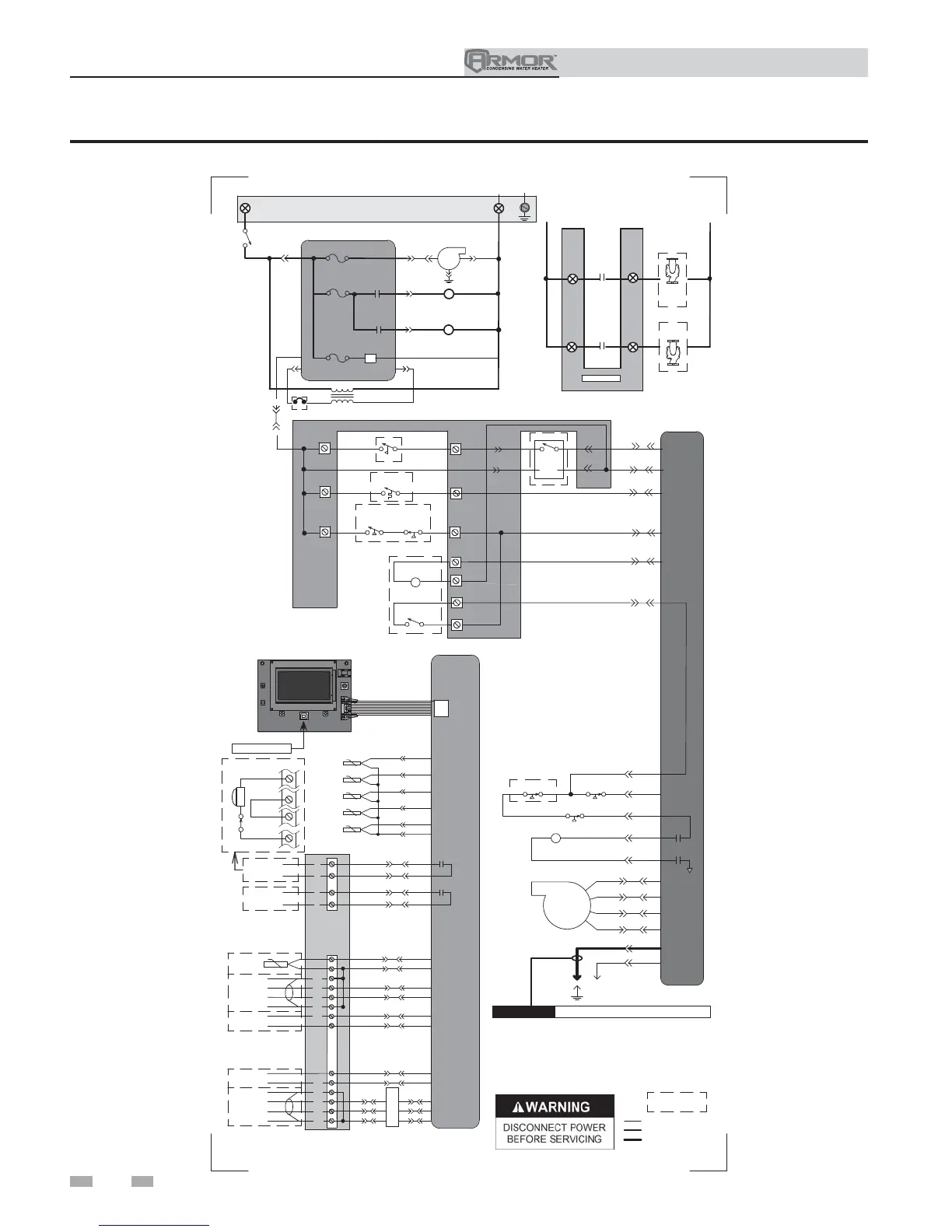
Figure 13-1 Ladder Diagram
BOX DEPICTS
OPTIONAL ITEMS
LADDER DIAGRAM
LBL20149 REV D
INTEGRATED
CONTROL
X2-1
GAS VALVE
GAS VALVE
RELAY
X5-7
X5-16
X5-8
X5-15
1
2
4
5
TR2
X1-7
FLAME ROD
SPARK
ROD
BLOWER
CONNECTION
BOARD
INLET
SENSOR
OPERATING
SENSOR
FLUE
SENSOR
INTEGRATED
CONTROL
RUN-TIME
CONTACTS
RIBBON CABLE
X7
TANK
SENSOR
0-10V
+
-
CASCADE
A
B
SHIELD
SHIELD
13
6
2
1
SILENCING
SWITCH
ALARM
BELL
S4
BMS
CN6
X6
CN6
X6
CN5-2
X4-6
CN5-9
X4-13
CN5-1
X4-7
CN5-8
X4-14
CN6
X6
CN6
X6
HIGH LIMIT
SENSOR
FLUE
SENSOR
X5-4
X5-12
X5-5
X5-13
X5-14
X5-6
0-10V
+
-
RATE
OUT
IN
MODBUS
A
B
SHIELD
SHIELD
CN6
X6
CN8-1
X6-1
CN8-2
X6-2
CN8-3 X6-3
X4-1
X9-2
X4-2
X9-1
X4-3
X9-3
PC INTERFACE
S2
S1a
S1b
S3a
S3b
16
17
19
20
21
22
23
24
25
26
27
28
29
30
3
4
1
2
ALARM
CONTACTS
CN6
X6
M
O
D
B
U
S
CN6
X6
CN6
X6
X2-2
NOTES:
1. Where possible, switches are shown without utilities (gas, water or
electricity) connected to the unit. As such, actual switch states may
vary from those shown on diagrams depending upon whether utilities
are connected or a fault condition is present.
2. See wiring diagram for additional notes.
LOW VOLTAGE
120 VAC
HIGH VOLTAGE
CN5-5
X4-3
HIGH VOLTAGE SPARK LEADCAUTION
X5-2
X5-11
X5-10
AIR PRESSURE
SWITCH
BLOCKED
DRAIN SWITCH
O-TEMP HEX SW
AW 286-801 ONLY
CN5-12
CN5-11
X4-10
X4-11
LOW GAS
PRESSURE
SWITCH
HIGH GAS
PRESSURE
SWITCH
LOUVER
RELAY COIL
24VAC
LOUVER
PROVING SWITCH
CN5-4
X4-4
CN5-3
X4-5
LWCO
TANK
THERMOSTAT
11
CN5-10
X4-12
CN5-14 X4-8
12
CN7-3
CN7-2
CN7-4
CN7-1
24 VAC
9
6
7
14
13
13
8
7
6
5
10
9
CONNECTION BOARD
120 VAC
24 VAC
120VAC
ON / OFF
SWITCH
X1-6
F2
3.15A
F1
5A
INTEGRATED CONTROL
JUNCTION BOX
X1-1
BUILDING
RECIRC PUMP
RELAY
DHW PUMP
RELAY
24V DC
SUPPLY
F3
.8A
X5-1
X5-9
AW 801
ONLY
X4-3
X1-3
X1-2
TERMINAL STRIP
120V SUPPLY "N"
3.5A
3
BLOWER
21
BUILDING
RECIRC
PUMP
DHW
PUMP
BUILDING
RECIRC PUMP
RELAY
DHW PUMP
RELAY
NEUTRAL
GROUND
TERMINAL STRIP
120V SUPPLY "L"
L
IN
BUILDING
RECIRC PUMP
CONTACTS
DHW PUMP
CONTACTS
L
OUT
FLOW
SWITCH
JUNCTION BOX
72

Table of Contents

Related product manuals