EasyManua.ls Logo

Lochinvar 151 - Wiring Diagram

Lochinvar 151
76 pages
Print Icon
To Next Page IconTo Next Page
To Next Page IconTo Next Page
To Previous Page IconTo Previous Page
To Previous Page IconTo Previous Page
Loading...
73
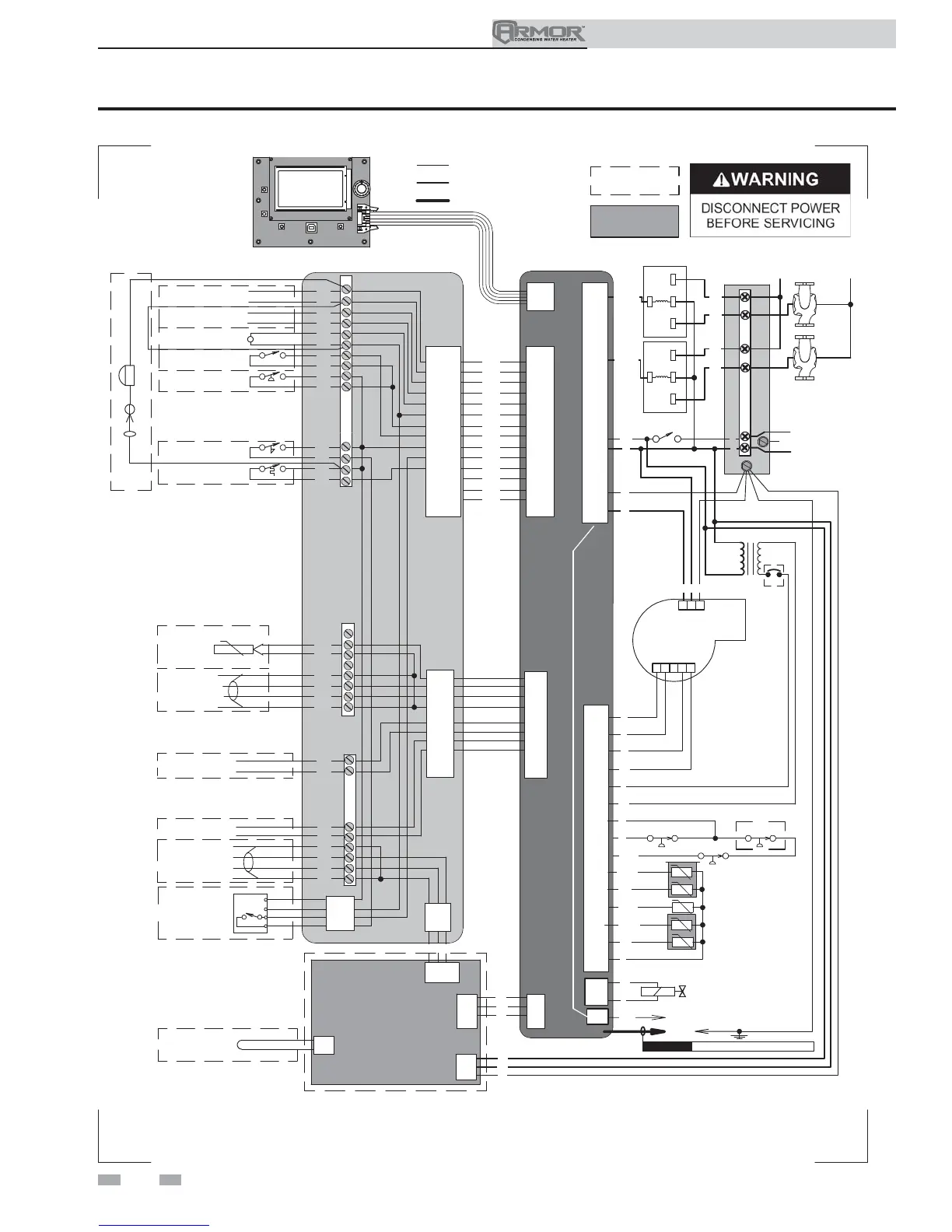
Figure 13-2 Wiring Diagram
13 Diagrams (continued)
X1-7
ON/OFF
SWITCH
1 2 3 4 5
G
R
R
W
R
T
W
BK
Y
BL
BLOWER
-T
HIGH LIMIT SENSOR S1b
OPERATING SENSOR S1a
INLET SENSOR S2
FLUE SENSOR S3a
FLUE SENSOR S3b
INTEGRATED
CONTROL
BK
Y
GAS VALVE
@24VAC
SPARK
ROD
TRANSFORMER
TR2
G
HIGH VOLTAGE SPARK LEADCAUTION
FLAME SENSOR
ALARM
CONTACTS
RUN-TIME
CONTACTS
24 VAC LOUVER
RELAY COIL
LOUVER
PROVING SWITCH
GAS PRESSURE
SWITCH
FLOW
SWITCH
TANK
THERMOSTAT
11
12
13
14
TANK
SENSOR
CASCADE
A
B
SHIELD
SHIELD
0-10V
+
-
BMS
IN
0-10V
+
-
RATE
OUT
MODBUS
OPTION
A
B
SHIELD
SHIELD
LOW
WATER
CUT-OFF
24 VAC
COM
P/BK
Y
W/R
1
2
3
4
5
6
7
8
9
10
15
16
17
18
19
20
21
22
CN7-1
CN7-2
CN7-3
CN7-4
CN5-1
CN5-8
CN5-2
CN5-9
CN5-3
CN5-10
CN5-11
CN5-4
CN5-5
CN5-14
CN5-12
CN5-6
CN5-13
CN5-7
X5-7
X5-16
X5-8
X5-15
X5-9
X5-1
X5-2
X5-10
X5-11
X5-4
X5-12
X5-6
X5-5
X5-13
X5-14
X2-2
X2-1
BK
Notes:
1. All wiring must be installed in accordance with: local, state, provincial and national code requirements per either N.E.C. in USA or C.S.A. in Canada.
2. If any original equipment wire as supplied with the appliance must be replaced, it must be replaced
with wire having same wire gauge (AWG) and rated for a
minimum of 105°C. Exceptions: Replacement high vo ltage spark lead and ribbon cables must be purchase
d from the factory. Use of a non-approved spark le
ad
or ribbon cables can lead to operational problems which could result in non-repairable damage to the i
ntegrated controller or other components.
3. Actual connector block locations may vary from those shown on diagrams. Refer to actual components for proper connector block locations when using
diagrams to troubleshoot unit.
WIRING DIAGRAM
LBL20134 REV D
BOX DEPICTS
OPTIONAL ITEMS
X4-7
X4-14
X4-6
X4-13
X4-5
X4-12
X4-11
X4-4
X4-3
X4-8
X4-10
X4-2
X4-9
X4-1
BK
BK
BK
BK
BK
BK
BK
BK
BK
BK
BK
BK
BK
CONNECTION BOARD
CN6
X6
HIGH VOLTAGE
LOW VOLTAGE
120 VAC
X-7
BOX DEPICTS
DUAL SENSOR
SINGLE HOUSING
MODBUS BOARD
MTR-01
CN8-1
CN8-2
CN8-3
X6-3
X6-2
X6-1
X6-4
X9-1
X9-2
X9-3
X9-4
X4-1
X4-2
X4-3
X4-4
X5-1
X5-2
X1-1
X1-2
X1-3
BK
W
G
R
BL
G
-T
-T
-T
-T
SHIELD
GROUNDING
JUMPER
O
GY
G
R/BK
W/BK
GY
PR
1 2
G
3
BELL JUMPER
ALARM BELL
SILENCING SWITCH
JUNCTION
BOX
DHW
PUMP
BUILDING
RECIRC.
PUMP
L
GND
N
120V
SUPPLY
X1-3
X1-4
X1-2
X1-5
X1-6
X1-8
X1-1
BK
L
W
L
N
OR/BK
PR/W
OR
OR
PR
N
PR
25
26
27
28
29
30
23
24
NO
COM
NO
COM
3.5A
AW 801
ONLY
O-TEMP HEX SW
BLOCKED DRAIN SWITCH
O
AIR PRESSURE SWITCH
P
O/BK
AW 286-801 ONLY
Installation & Operation Manual

Table of Contents

Related product manuals