EasyManua.ls Logo

Loewe bild c.32 - Расположение И Функции Разъемов

Loewe bild c.32
Print Icon
To Next Page IconTo Next Page
To Next Page IconTo Next Page
To Previous Page IconTo Previous Page
To Previous Page IconTo Previous Page
Loading...
6
русский
Loewe bild c | Руководство пользователя
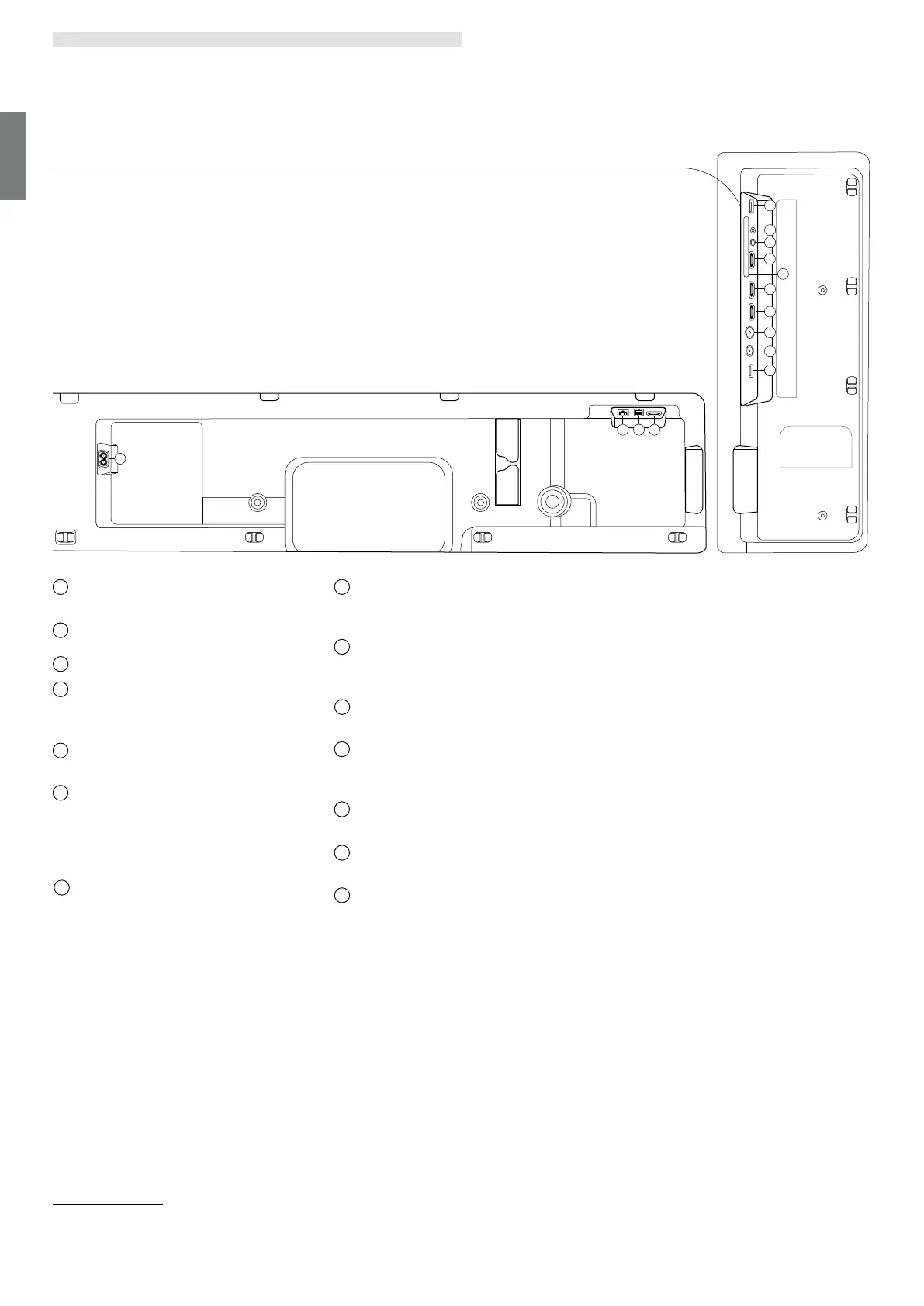
Расположение и функции разъемов
14
13 12 11
1
2
3
4
5
6
7
8
9
10
1
USB 3.0 — USB-разъем
USB типа A – USB 3.0 (макс. 1000 мА)
2
AUDIO OUT — аудиовход
Разъем 3,5 мм (аналоговый), Л/П
3
SERVICE
4
HDMI 1
— вход HDMI 1
HDMI — цифровой
видеовход
5
COMMON INTERFACE — слот CI
(стандарт V1.4)
6
HDMI 2 — вход HDMI 2
(с расширенным реверсивным
звуковым каналом)
HDMI — цифровой
видеовход / аудиовход/аудиовыход
7
HDMI 3 — вход HDMI 3
HDMI — цифровой
видеовход / аудиовход
8
ANT TV — эфирное ТВ/аналоговое
кабельное ТВ / DVB-T/T2/C HD
Разъем IEC — 75 Ом / 5 В / 80 мА
9
ANT SAT — спутниковая антенна
DVB-S/S2 HD
Разъем F — 75 Ом/ 13/18 В / 500 мА
10
USB 2.0 — USB-разъем
USB типа A – USB 2.0 (макс. 500 мА)
11
HDMI 4
1)
— вход HDMI 4
HDMI — цифровой
видеовход / аудиовход
12
TOSLINK — аудиовход
TOSLINK (цифровой)
13
LAN — сетевое соединение
RJ-45 — Ethernet / Fast Ethernet
14
AC IN — подключение сети питания
Сетевой разъем — 220–240 В, 50 / 60 Гц
Расположение и функции разъемов
1)
Вход HDMI 4 недоступен на bild c.32.

Table of Contents

Related product manuals