EasyManua.ls Logo

Mackie Thump 12A - Page 9

Mackie Thump 12A
21 pages
Print Icon
To Next Page IconTo Next Page
To Next Page IconTo Next Page
To Previous Page IconTo Previous Page
To Previous Page IconTo Previous Page
Loading...
Owner’s Manual
9
Owner’s Manual
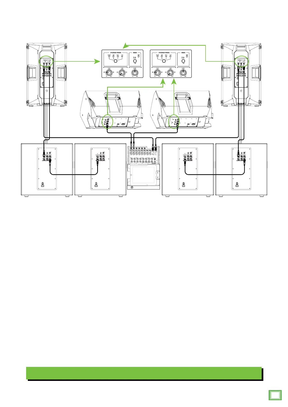
Large Club System
Hookup Diagrams continued...
Here’s how to set up a large club system. In this example, the L/R outputs of a DL1608 mixer are
connected directly to the CH1 inputs of a pair of Thump15A loudspeakers. The CH1 gains of these
PA loudspeakers may be set to ‘Line’ and the Speaker Modes on both to Sub.
The Mix Out of each loudspeaker is then connected to the channel A input of a pair of Thump18S
subwoofers.From here, the channel A full range outputs of the two outer Thump18S subwoofers
are connected directly to the channel A inputs of another set of Thump18S subwoofers. Talk about
beefy low end!
The aux 1 and aux 2 sends from the mixer are connected directly to the CH1 inputs of a pair
of Thump12A loudspeakers to be used as monitors for the band. The CH1 gains of the the
monitor loudspeakers may be set to ‘Line’ and the Speaker Modes on both to Monitor.

Related product manuals