EasyManua.ls Logo

M&C CG-2 - 10 Description; Figure 4 CG-2 and CG-2 M; Figure 5 CG-2 H-W and CG-2 MH-W

Default Icon
35 pages
Print Icon
To Next Page IconTo Next Page
To Next Page IconTo Next Page
To Previous Page IconTo Previous Page
To Previous Page IconTo Previous Page
Loading...
16 CG-2 | 1.04.00 www.mc-techgroup.com
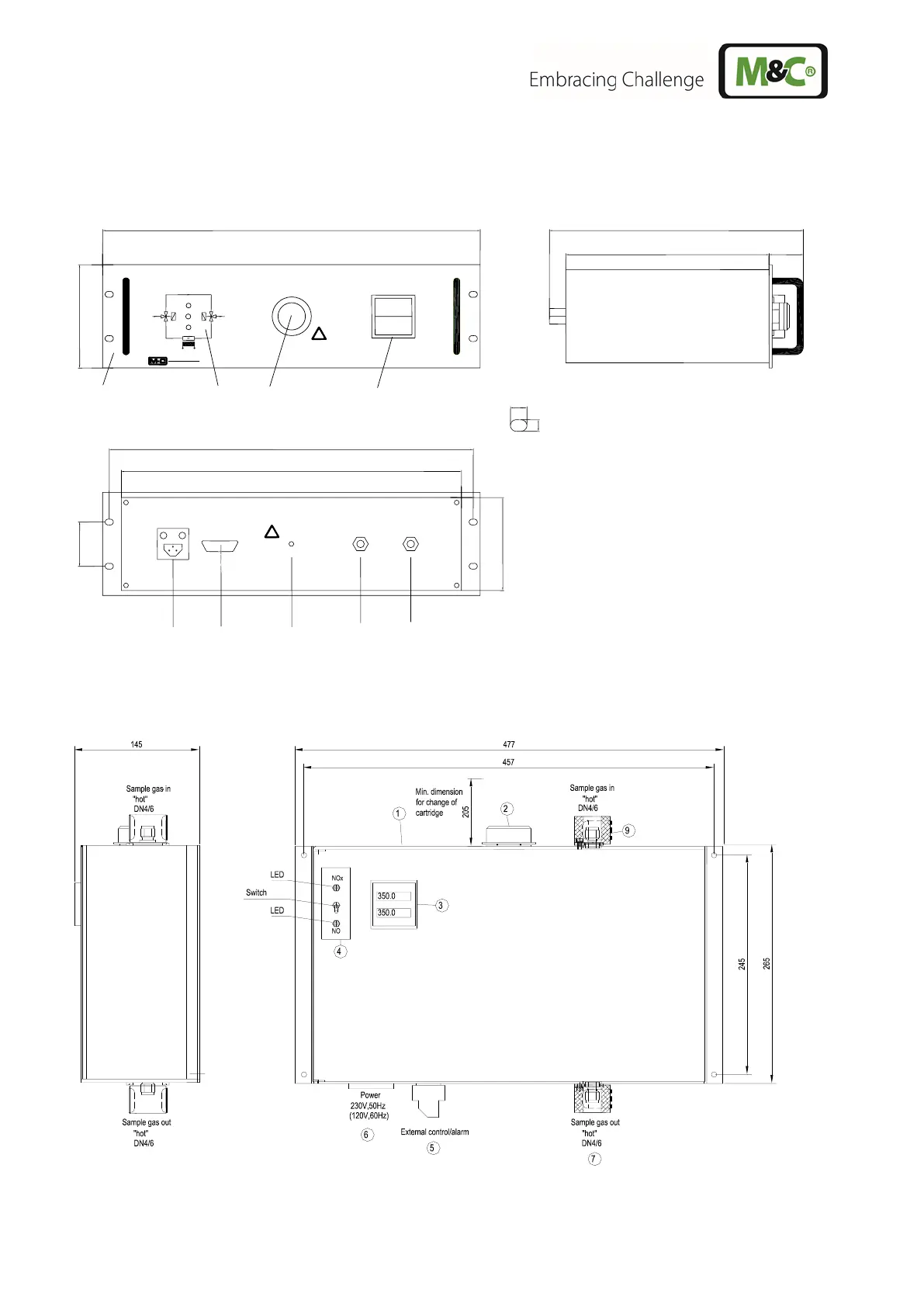
10 DESCRIPTION
Figure 4 shows the conversion unit version CG-2 and CG-2M in the 19”-rack housing.
Back view
= status alarm temperature sub-D-plug 9 pole
= mains connection, apparatus plug
= sample gas outlet, G1/4i
= sample gas inlet G1/4“ with CG-2/-2M
= sample gas inlet 6mm tube connection*
with CG-2H/-2MH
* Standard
10 (0.39”)
7 (0.28”)
44
(1.73”)
260 (10.24”)
325 (12.8”)
483 (approx. 19”)
435 (17.13”)
465.6 (18.33”)
120
(4.72”)
ø6mm
350
350
G1/4"i
Converter
CG
!
!
57
(2.24”)
132,5
(3HE)
(5.22”)
Figure 4 CG-2 and CG-2M
Figure 5 shows the conversion unit versions CG-2H-W and CG-2MH-W in a wall mounting housing.
Figure 5 CG-2H-W and CG-2MH-W
(5.71“)
(18.78“)
(18“)
(9.65“)
(10.43“)
(8.07“)

Table of Contents

Related product manuals