EasyManua.ls Logo

MARLO MGT 240 - System Operation; Timer Operation

Default Icon
60 pages
Print Icon
To Next Page IconTo Next Page
To Next Page IconTo Next Page
To Previous Page IconTo Previous Page
To Previous Page IconTo Previous Page
Loading...
MGT 240M–1200M 3” NXT2 - SYSTEM 14 DEMAND
INSTALLATION
12
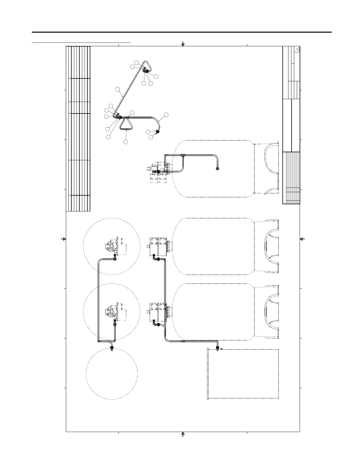
MGT-900 & MGT-1200 BRINE PIPING
Parts List
ITEM PART NUMBER DESCRIPTION ITEM QTY LENGTH COMMENTS
1 A2212004
ELBOW 3/4 PVC SCH 80 SXS 90 DEG
2
2 A2401011
HOSE 3/4 SPA FLEX
3
3 A2053040
NIPPLE 3/4 X 2-1/2 PVC SCH 80 TOE(1883-025)
3
4 A2053001
PIPE 3/4 PVC SCH 80
2 3.000 in
5 A2031201
REDUCER 1 X 3/4 BRASS BELL
2
6 A2479005
TEE 3/4 PVC SCH 80 SXSXS
1
7 A2484005
UNION 3/4 PVC SCH 80 SOCKET
3
1
1
2
2
3
3
4
4
5
5
6
6
7
7
8
8
A A
B B
C C
D D
DATE
FRAC.
DRN.
APP'D.
_
DEC.
_
DRAWING NO.
SCALE
FILE ID.
SHEET
REV.
OF
BRINE LINE ASSY TWN 3/4"-10GPM 1800
FABRICATION DRAWING
11
REVISIONS
NO. BY REMARKS
DATE
3
7
2
2
7
4
1
3
5
2
7
4
1
3
5
6

Related product manuals