EasyManua.ls Logo

MARLO NXT2 Series - Page 29

Default Icon
52 pages
Print Icon
To Next Page IconTo Next Page
To Next Page IconTo Next Page
To Previous Page IconTo Previous Page
To Previous Page IconTo Previous Page
Loading...
26
MGT 2” 60M–600M NXT2 TWIN ALTERNATING
OPERATION
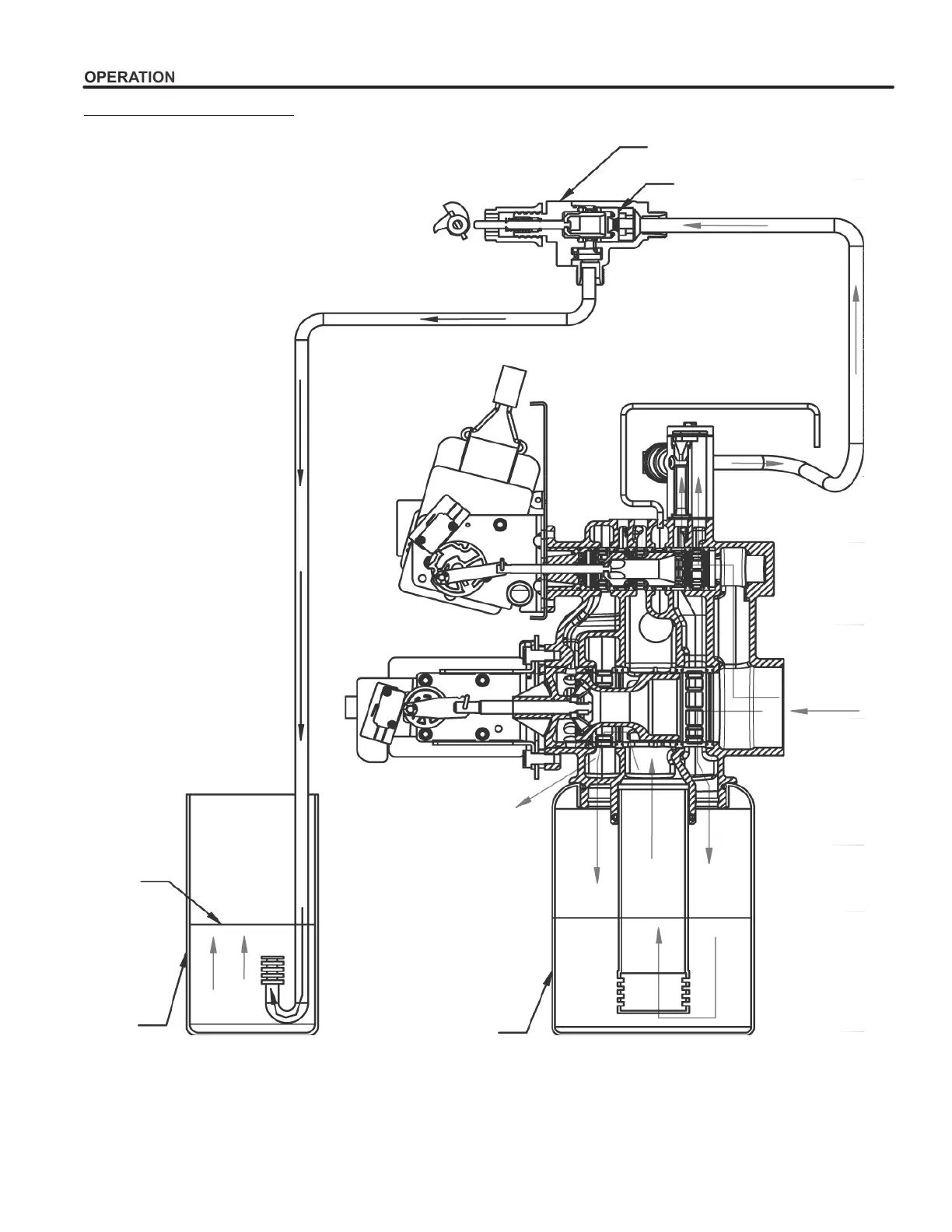
BRINE TANK FILL POSITION
Hard water ows thru the service valve and down thru the mineral. Conditioned water enters the bottom distributor —
ows up the center tube around the piston to the outlet. Hard water ows to the regenerating valve thru the injector
housing and brine valve to ll the brine tank.
FLOW CONTROL
INLET
OUTLET
DRAIN
BRINE VALVE
BRINE
LEVEL
RESIN
TANK
INLET
BRINE
TANK

Related product manuals