EasyManua.ls Logo

Mastervolt WHISPER 6 ULTRA

Mastervolt WHISPER 6 ULTRA
40 pages
To Next Page IconTo Next Page
To Next Page IconTo Next Page
To Previous Page IconTo Previous Page
To Previous Page IconTo Previous Page
Loading...
INFORMATION
EN / Whisper 6 Ultra for mobile applications / December 2009 / Copyright © 2009 Mastervolt 19
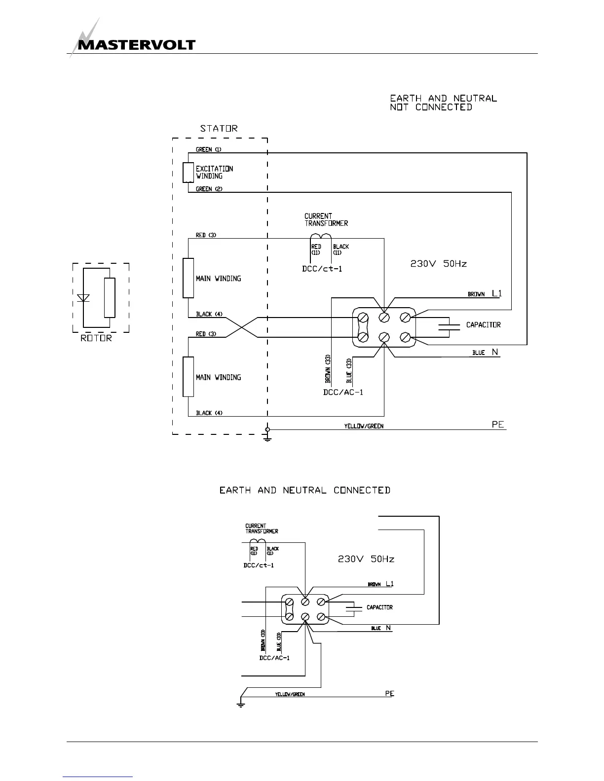
2.5.16 Electrical diagrams 230 V AC / 50 Hz
Figure 13: Electrical diagram 230 V AC / 50 Hz

Table of Contents

Other manuals for Mastervolt WHISPER 6 ULTRA

Related product manuals