EasyManua.ls Logo

Mastervolt WHISPER 6 ULTRA

Mastervolt WHISPER 6 ULTRA
40 pages
To Next Page IconTo Next Page
To Next Page IconTo Next Page
To Previous Page IconTo Previous Page
To Previous Page IconTo Previous Page
Loading...
INFORMATION
EN / Whisper 6 Ultra for mobile applications / December 2009 / Copyright © 2009 Mastervolt 21
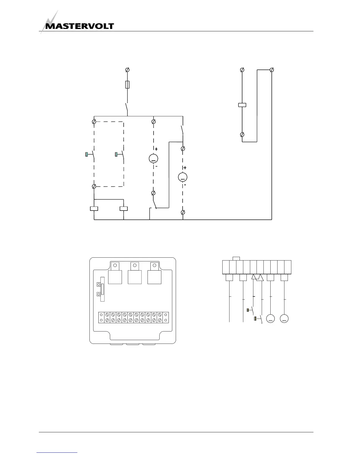
PUMP (PCB)
GENERATOR CONTACT
THERMOSTAT ALTERNATOR
THERMOSTAT ENGINE
ALTERNATOR
RADIATOR COOLER
RADIATOR COOLER
ENGINE
BATTERY
TERMINAL BLOCK
M
M
M
M
CU0,75
80-70∞C
CU4
CU0,75
45-35∞C
CU0,75
+
4
+
1
-
2
-
356
+
7
CU2,5
CU2.5
-
8
+
9
-
10
JUCTION BOX AIR FANS
FUSE
20/40A
K3
21435768
K1
10
9
K2
DIMENIONS BOX: 160x160x90 MM
Fig. 16: Electrical diagram fan control using 12V or 24V
DC radiator fans (optional)
FUSE
20/40A
+ BAT.
THERMOSTAT COOLER
ENGINE GENERATOR
CONTROL PANEL
PUMP 2
1
1
9
4
3
2
6
7
5
8
10
K1
K2
K3
K1
K2
K3
45-35°C
80-70°C
M
M
2
1
2
3
4
5
5
3
1
2
5
3
RADIATOR COOLER
ENGINE GENERATOR
BAT.

Table of Contents

Other manuals for Mastervolt WHISPER 6 ULTRA

Related product manuals