EasyManua.ls Logo

Maxcess Fife-200 - Installing the Web Guide

Maxcess Fife-200
36 pages
Print Icon
To Next Page IconTo Next Page
To Next Page IconTo Next Page
To Previous Page IconTo Previous Page
To Previous Page IconTo Previous Page
Loading...
32
INSTALLATION
www.maxcessintl.com
Fife-200 Web Guiding System
MI 1-918 1 C
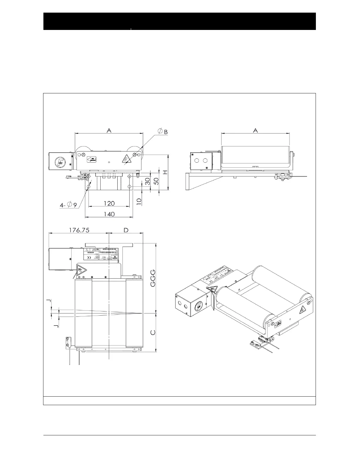
Installing the web guide
Mount the guide(s) in the web path on a rigid support frame using four M8 bolts through the
9 mm [0.35 in] diameter holes in the guide support frame.
Inside type (actuator is between mounting surface and guide)
Figure 1. Guide installation drawing, actuator mounting inside type

Related product manuals