EasyManua.ls Logo

Maxon TE-15 - Hydraulic System Diagrams; Hydraulic Schematic (Gravity Down)

Maxon TE-15
39 pages
Print Icon
To Next Page IconTo Next Page
To Next Page IconTo Next Page
To Previous Page IconTo Previous Page
To Previous Page IconTo Previous Page
Loading...
11921 Slauson Ave. Santa Fe Springs, CA. 90670 (800) 227-4116 FAX (888) 771-7713
28
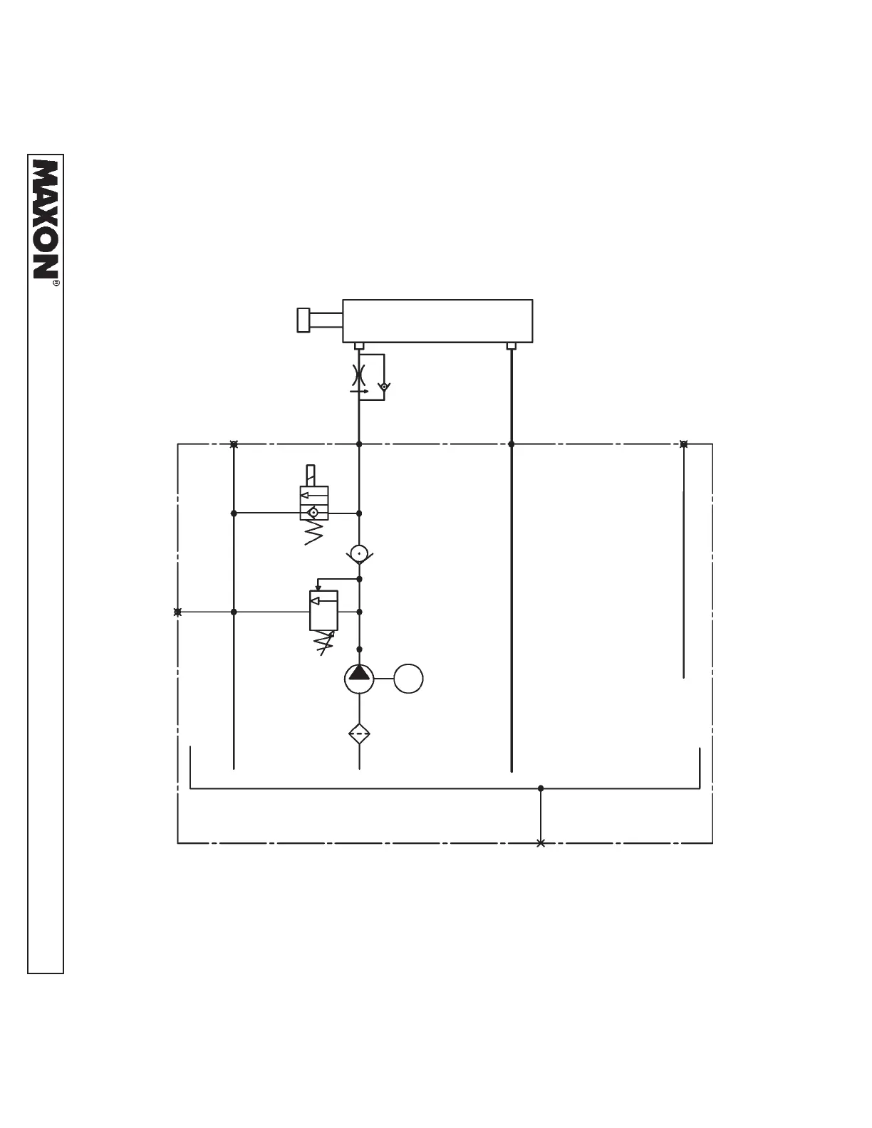
HYDRAULIC SYSTEM DIAGRAMS
HYDRAULIC SCHEMATIC (GRAVITY DOWN)
FIG. 28-1
FIG. 28-1
2 GPM FLOW
CONTROL VALVE
VALVE A
HYDRAULIC CYLINDER
RELIEF VALVE
(SET AT 3250 PSI)
PUMP
MOTOR
(REFERENCE)
VENT PORT
RESERVOIR
M
PRESSURE PORT
CHECK VALVE
FILTER
DRAIN HOLE
(PLUGGED)
FILLER HOLE
(PLUGGED)
AUX. HAND
PUMP PORT
(PLUGGED)
RETURN PORT
(PLUGGED)

Other manuals for Maxon TE-15

Related product manuals