EasyManua.ls Logo

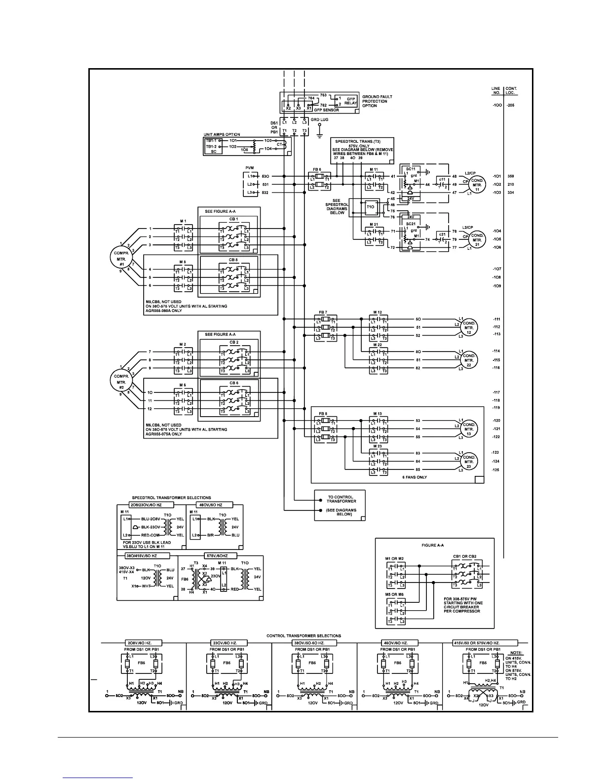
McQuay AGR 100AS - Figure 11, Standard Single-Point Connection with FanTrol

McQuay AGR 100AS
100 pages
Print Icon
To Next Page IconTo Next Page
To Next Page IconTo Next Page
To Previous Page IconTo Previous Page
To Previous Page IconTo Previous Page
Loading...
IOMM AGR-1 AGR 070A through 100A 23
Figure 12, Standard Single-Point Connection with Optional SpeedTrol

Other manuals for McQuay AGR 100AS

Related product manuals