EasyManua.ls Logo

McQuay RAH 047C - Page 64

McQuay RAH 047C
122 pages
Print Icon
To Next Page IconTo Next Page
To Next Page IconTo Next Page
To Previous Page IconTo Previous Page
To Previous Page IconTo Previous Page
Loading...
64 McQuay IM 987
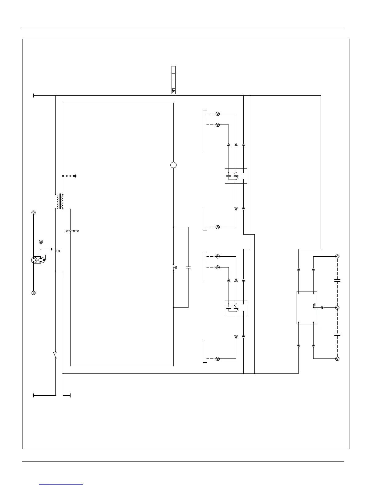
Wiring Diagrams
Figure 72: Power Package Only, Control Power
/1.68 /1.68
H237-3
H265-1
H235-5
H237-4
H265-2
SUPPLY AIR
SMOKE DETEKTOR
(24 VOLT SIGNAL FROM THE FIELD)
H313-1
H313-2
H315-6
H315-8
(CLOSE) (OPEN)
H316-7
(20VA PILOT DUTY MINIMUM CONTACT RATING)
CUSTOMER SUPPLIED POWER
115 VAC
H235-6
H237-5
H267-2
RETURN AIR
SMOKE DETEKTOR
H237-3
H267-1
(24 VOLT SIGNAL FROM THE FIELD)
200
201
202
203
204
205
206
207
208
209
210
211
212
213
214
215
216
217
218
219
220
221
222
223
224
225
226
227
228
229
230
231
232
233
234
235
236
237
238
239
240
241
242
243
219
426221 256
115V
24V
CLASS 2
(ECON/OADM)
3
2
4
1
14
15
GRD
16
21
10
11
12
13
23
24
55
3
1
114 54
5
4
2
H 115
6
17
16
86
21
2-CW
4/R-COM
WHT
1-CCW
BLK
7
67 68 69
H
G
N
G
H N
102
13
21
56 113 53
H 115
6
17
16
6
5
2
3
1
T2
TB1B
T1_115VAC T1_N
S1
TB1B
TB1D
T2_115VAC
TB2
P20
+PP
TB2 TB2
P20
+PP
SD1
+NB
PL11
+PP
PL11
+PP
PL11
+PP
PL11
+PP
ACT3
+NB
PL11
+PP
TB2
TB2
TB2
GND29
REC1
TB7
TB7 TB7
R63
R63
DHL
TB2 TB2 TB2
SD2
+NB
PL21
+PP
PL21
+PP
204A
204B
203D
168A
168C
228C 228D
227B
239A
238B
238A
201D
201B 201C
219A
228A 228B
227A
(Schematic continues on next page.)

Table of Contents

Related product manuals