EasyManua.ls Logo

McQuay RAH 047C - Page 70

McQuay RAH 047C
122 pages
Print Icon
To Next Page IconTo Next Page
To Next Page IconTo Next Page
To Previous Page IconTo Previous Page
To Previous Page IconTo Previous Page
Loading...
70 McQuay IM 987
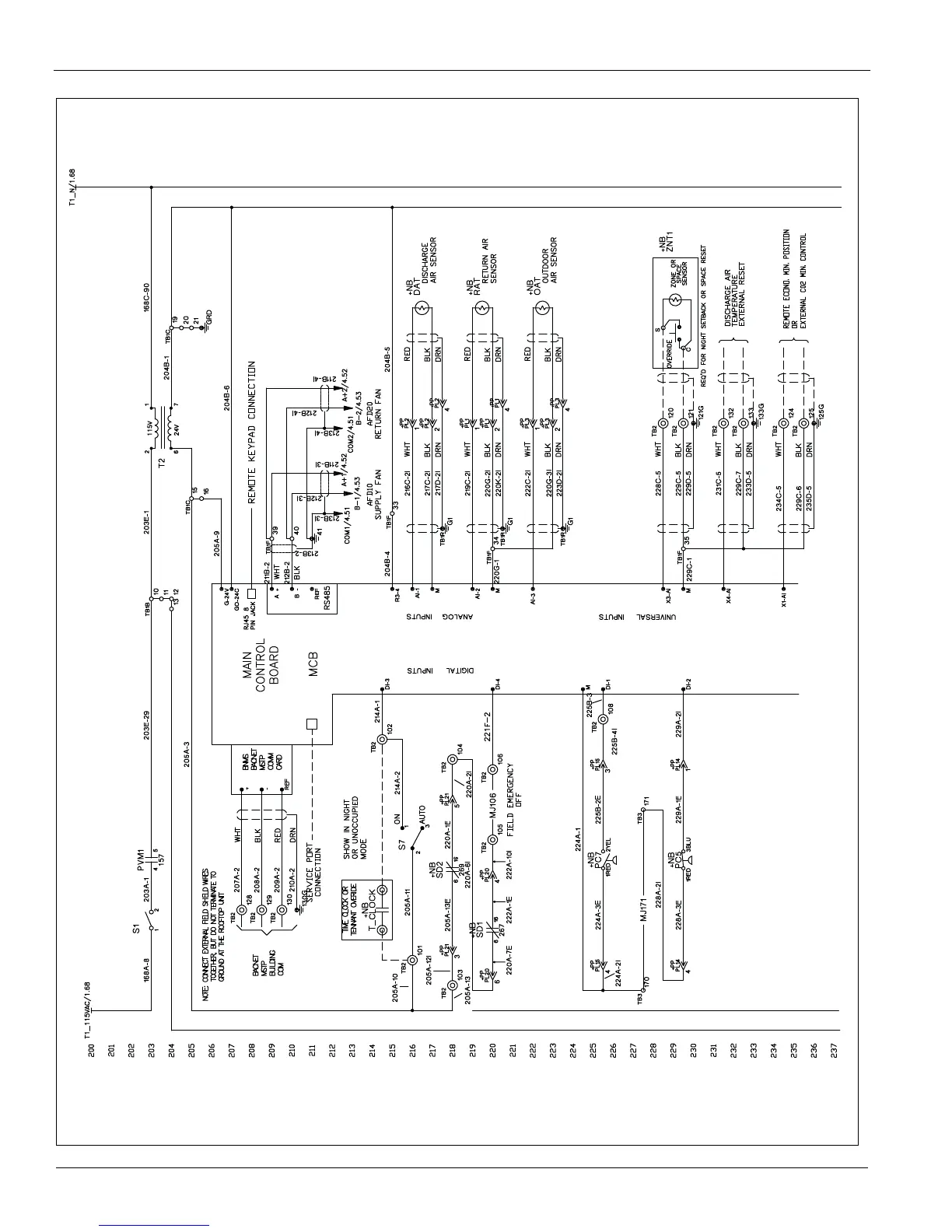
Wiring Diagrams
Figure 78: VAV Control Inputs
(Schematic continues on next page.)

Table of Contents

Related product manuals