EasyManua.ls Logo

McQuay RAH 047C - Page 82

McQuay RAH 047C
122 pages
Print Icon
To Next Page IconTo Next Page
To Next Page IconTo Next Page
To Previous Page IconTo Previous Page
To Previous Page IconTo Previous Page
Loading...
82 McQuay IM 987
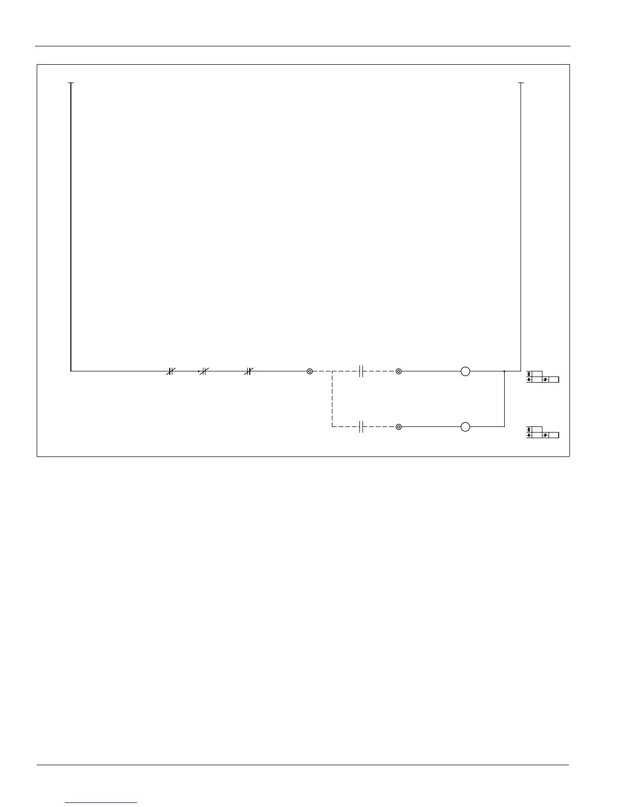
Wiring Diagrams
Figure 90: Fan Control, Power Package Only
/1.68
SUPPLY FAN ON/OFF
RETURN FAN ON/OFF
4
00
4
01
4
02
4
03
4
04
4
05
4
06
4
07
4
08
4
09
4
10
4
11
4
12
4
13
4
14
4
15
4
16
4
17
4
18
4
19
4
20
4
21
4
22
4
23
4
24
4
25
4
26
4
27
4
28
4
29
4
30
4
31
4
32
433
149137
137
260
149
219
A1 A2
A1 A2
76757675
208
209
207
811
M10
M20
MMP20MMP10
T1_N115VAC_GF/1
TB4
TB4
TB4
R63
431A
426A 426B 426C426D

Table of Contents

Related product manuals