EasyManua.ls Logo

McQuay WSC

McQuay WSC
84 pages
To Next Page IconTo Next Page
To Next Page IconTo Next Page
To Previous Page IconTo Previous Page
To Previous Page IconTo Previous Page
Loading...
Product Manual PM WSC/WDC 23
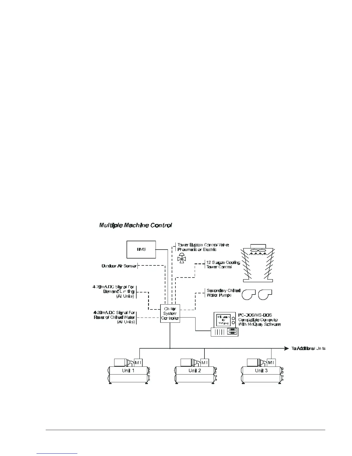
Three or More Units
In the past, it has been difficult to control multiple machines for optimum operating economy and comfort.
MicroTech Chiller System Controllers (CSC) allow coordinated control of multiple machines, from load balancing
and sequencing, to control of the cooling tower and water pumps. All this is accomplished via twisted pair
communications between the Chiller System Control panel and the chillers, and via standard control wiring
between the chillers and auxiliary control points.
The optional Chiller System Controller is a separate panel that controls up to12 MicroTech panels, optimizing
the entire central plant operation. All CSC panels have the following features:
Multiple compressor programmable sequencing.
12 stages of tower control.
Pneumatic or electric control of a three-way tower bypass valve.
Secondary pump control including lead-lag and sequencing.
Single point BMS interface for reset and demand limiting of all machines.
Expanded time clock for multiple machine control.
Temperature monitoring of primary and secondary chilled water loop, outside air temperature and tower
water supply and return temperature.
Central on/off control point for all machines.
Optimized morning start-up to insure full cooling at a specified time.

Other manuals for McQuay WSC

Related product manuals