EasyManua.ls Logo

McQuay WSC

McQuay WSC
84 pages
To Next Page IconTo Next Page
To Next Page IconTo Next Page
To Previous Page IconTo Previous Page
To Previous Page IconTo Previous Page
Loading...
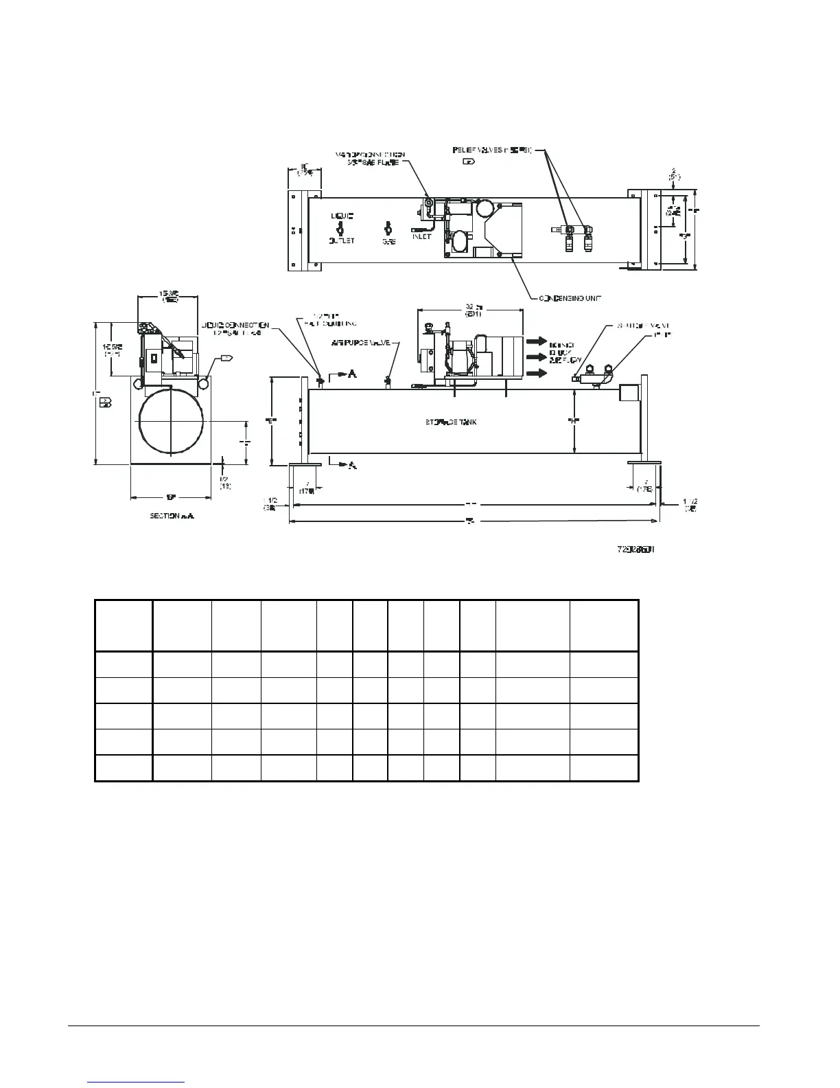
46 Product Manual PM WSC/WDC
Pumpout Units
Model
Number
Overall
Unit Length
“A”
Overall
Unit Width
“B”
Overall
Unit Height
“C” “D” “E” “F” “G” “H”
Storage
Capacity
at 90°F
lbs (kg)
Weight
Empty
lbs (kg)
LSA 5000 204 1/2
(5194)
35
(889)
54 5/8
(1387)
18 1/2
(470)
37 1/2
(953)
201 1/2
(5118)
31
(787)
30 3/4
(781)
4570 (2073)
At 80% Full
4889
(2218)
LSA 3600 152 1/8
(3854)
35
(889)
54 1/8
(1377)
18 1/2
(470)
37 1/2
(953)
149 1/8
(3788)
31
(787)
30
(762)
3202 (1195)
At 80% Full
3483
(1301)
LSA 2200 108 1/8
(2746)
35
(889)
54 1/8
(1377)
18 1/2
(470)
37 1/2
(953)
105 1/8
(2670)
31
(787)
30
(762)
2199 (821)
At 80% Full
3043
(1137)
LSA 1600 167 3/4
(4261)
35
(635)
44 1/8
(1123)
13 1/2
(343)
27 ½
(699)
164 3/4
(4185)
21
(533)
20
(508)
1586 (592)
At 80% Full
2015
(753)
LSA 1200 118 1/4
(3004)
25
(635)
44 1/8
(1123)
13 1/2
(343)
27 1/2
(699)
115 1/4
(2927)
21
(533)
20
(508)
1078 (403)
At 80% Full
1797
(672)
Notes:
1. All dimensions in inches (mm).
2. 3 in. lifting holes are provided.
3. The shipping skid adds 6 in. to overall height.
4. The optional casters are field installed and add 11 in. to unit height.
5. I in. liquid receiver valves must be piped per ANSI 15 for each storage tank.
6. Refer to evaporator physical data on page 30 for unit refrigerant charge.
7. Use certified drawings from local sales office for more dimensional detail and for construction.

Other manuals for McQuay WSC

Related product manuals