EasyManua.ls Logo

McQuay WSC

McQuay WSC
84 pages
To Next Page IconTo Next Page
To Next Page IconTo Next Page
To Previous Page IconTo Previous Page
To Previous Page IconTo Previous Page
Loading...
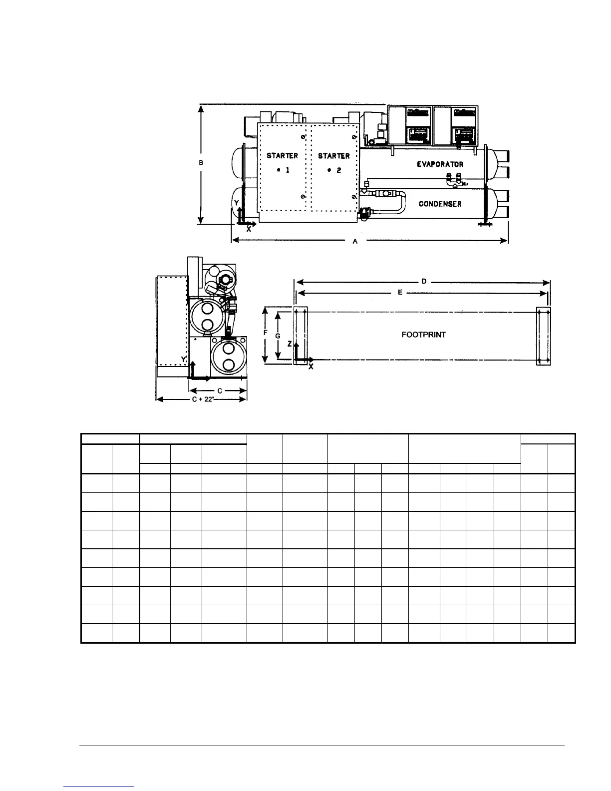
Product Manual PM WSC/WDC 37
WDC 048/050, 180 to 320 tons
VESSEL CODE OVERALL LENGTH OVERALL CONNECTIONS
1&3 2 HEAD CONN WIDTH W/O
EVAP COND PASS PASS BOTH ENDS
OVERALL
HEIGHT
STARTER
CENTER OF GRAVITY FOOTPRINT
A A A B C X Y Z D E F G
EVAP
2
PASS
COND
2
PASS
E1812 C1612
169
(4298)
170
(4134)
169
(4298)
74
(1883)
34
(876)
66
(1608)
34
(857)
14
(352)
150
(3802)
147
(3726
35
(876)
29
(724)
6 5
E1812 C1812
169
(4299)
163
(4132)
169
(4299)
76
(1934)
34
(876)
65
(165)
33
(875)
14
(362)
150
(3802)
147
(3726
35
(876)
29
(724)
6 6
E1816 C1816
218
(5544)
212
(5380)
218
(5544)
76
(1934)
34
(876)
97
(2458)
31
(781)
14
(368)
199
(5050)
196
(4974)
35
(876)
29
(724)
6 6
E2012 C1812
169
(4299)
163
(4147)
169
(4299)
78
(1984)
34
(876)
67
(1705)
34
(873)
14
(359)
150
(3802)
147
(3726
35
(876)
29
(724)
6 6
E2016 C1816
218
(5544)
212
(5393)
218
(5544)
78
(1994)
34
(876)
93
(2359)
32
(813)
14
(365)
199
(5050)
196
(4974)
35
(876)
29
(724)
6 6
E2212 C2212
169
(4299)
164
(4158)
169
(4299)
79
(2020)
40
(1024)
72
(1838)
29
(733)
15
(384)
150
(3802)
147
(3726
41
(1024)
35
(872)
8 8
E2216 C2216
218
(5544)
213
(5404)
218
(5544)
79
(2020)
40
(1024)
93
(2367)
31
(800)
20
(498)
199
(5050)
196
(4974)
41
(1024)
35
(872)
8 8
E2612 C2212
169
(4299)
165
(4180)
169
(4299)
85
(2149)
44
(1131)
75
(1918)
35
(902)
20
(505)
150
(3802)
147
(3726
45
(1131)
39
(979)
8 8
E2616 C2216
218
(5544)
214
(5428)
218
(5544)
85
(2149)
44
(1131)
97
(2467)
36
(921)
19
(492)
199
(5050)
196
(4974)
45
(1131)
39
(979)
8 8
Note: See notes on page 33.

Other manuals for McQuay WSC

Related product manuals