EasyManua.ls Logo

Meyer E-58H - Electrical and Flow Charts

Meyer E-58H
78 pages
Print Icon
To Next Page IconTo Next Page
To Next Page IconTo Next Page
To Previous Page IconTo Previous Page
To Previous Page IconTo Previous Page
Loading...
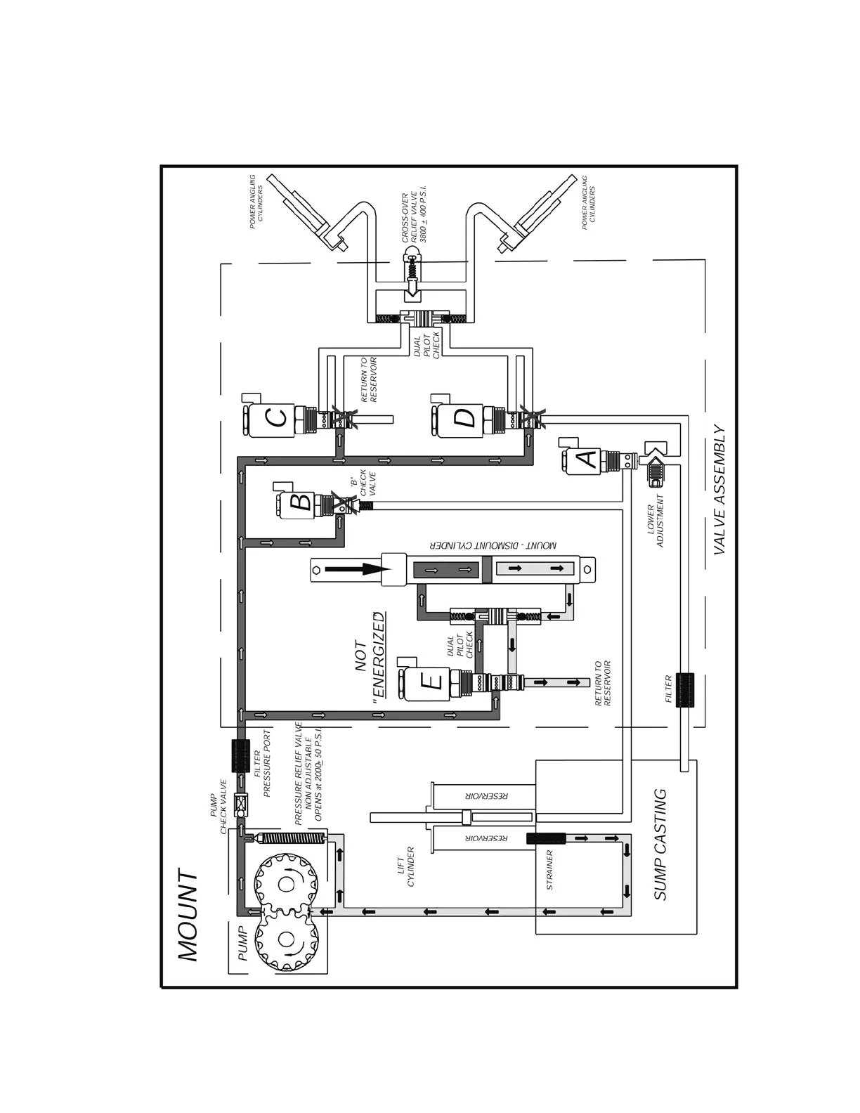
E-88 Mount, Motor Only
-6-
FIGURE 1-1

Other manuals for Meyer E-58H

Related product manuals