EasyManua.ls Logo

Midea MDD160-V052/F01-US1305

Midea MDD160-V052/F01-US1305
50 pages
To Next Page IconTo Next Page
To Next Page IconTo Next Page
To Previous Page IconTo Previous Page
To Previous Page IconTo Previous Page
Loading...
Service manual for Dryer Machine Midea America Company
-------------------------------------------------------------------------------------------------------------------------------------------------------
25
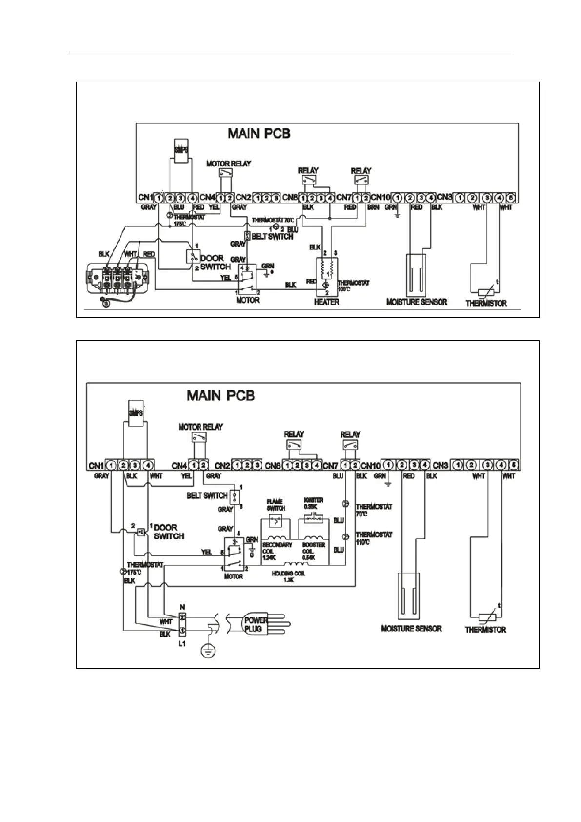
ELECTRIC MODEL:
GAS MODEL:

Related product manuals