EasyManua.ls Logo

Miele H 212 E - Oven and Hob Connection Procedures; Connecting Oven, Hob, and Connector Cables; Cable Security and Protective Shelf Installation

Miele H 212 E
68 pages
Print Icon
To Next Page IconTo Next Page
To Next Page IconTo Next Page
To Previous Page IconTo Previous Page
To Previous Page IconTo Previous Page
Loading...
Installation instructions
Disconnect the mains electricity
supply to the appliance.
Install the hob.
Starting from the wall unit push the
cables into the ducting.
The plugs on the connecting cables
and the sockets on the hob are
coded with the same colour for
matching.
Connect the plugs of the connecting
cables into the corresponding
sockets on the additional connection
box, and connect the individual
wires according to the wiring plan
supplied.
Secure the connecting cables in the
connection box with the strain relief
clip.
Fit the hob plug into the socket.
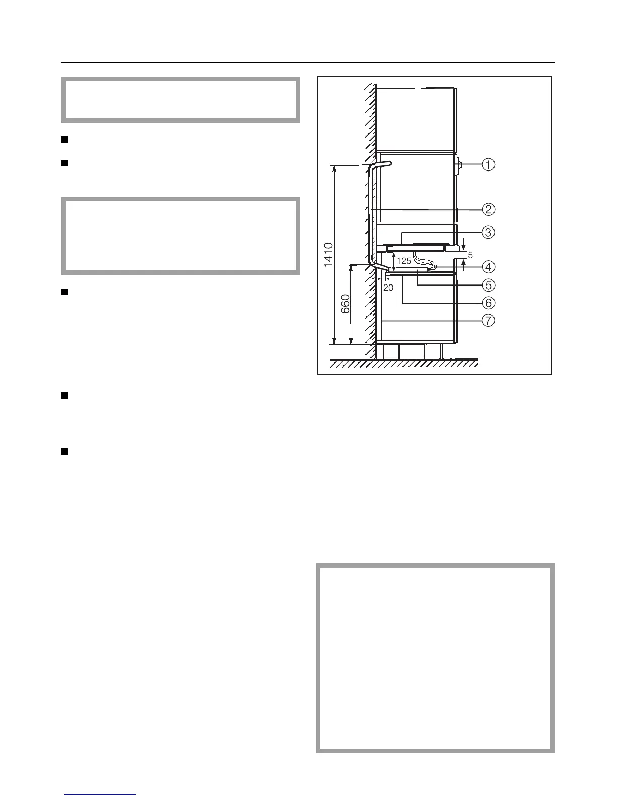
b
underbench-oven, installed remotely
c cable in ducting
d
hob
e cable to hob
f additional connector box
g protective shelf below
h back wall of unit
For safety reasons, a protective shelf
must be installed as shown to ensure
that inadvertant contact with the hot
underside is prevented.
The distance between the lower
edge of the worktop and the upper
edge of the protective shelf must be
a minimum of 125 mm.
In order to ensure sufficient air circu-
lation, a gap of 20 mm must be left
between the protective shelf and
the rear panel of the base unit, and
a gap of 5 mm must be left between
the cabinet front panel and the
benchtop.
64

Related product manuals