EasyManua.ls Logo

Miele HR 1421 - All Gas Range Dimensions; Standard Configuration Dimensions (HR 11 xx)

Miele HR 1421
124 pages
Print Icon
To Next Page IconTo Next Page
To Next Page IconTo Next Page
To Previous Page IconTo Previous Page
To Previous Page IconTo Previous Page
Loading...
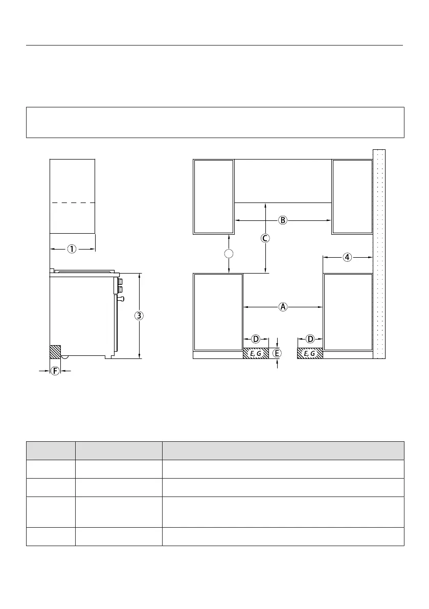
All Gas Range dimensions
32
All Gas Range HR 11xx with Standard Burner Configuration
(M Pro Power Plus)
HR 1124, HR 1134, HR 1135, HR 1136
If a BTU-reducing kit is necessary, an authorized installer is required to modify
the product to meet ANSI Z21.
2
In case of combustible materials, a minimum distance of 6" must be observed on each
side in addition to dimension .
, , The shaded area represents the installation area for the connections:
E = Electrical connection, G = Gas connection
Position Dimensions Description
13" (330mm) Maximum depth of top cabinet
18" (457mm) Minimum distance to bottom edge of top cabinet
35 1/2"–37"
(901–940mm)
Distance from the floor to cooktop surface
10" (254mm) Minimum distance to combustible surfaces.

Table of Contents

Related product manuals