EasyManua.ls Logo

Miele HR 1421 - Detailed Views of HR 1935

Miele HR 1421
124 pages
Print Icon
To Next Page IconTo Next Page
To Next Page IconTo Next Page
To Previous Page IconTo Previous Page
To Previous Page IconTo Previous Page
Loading...
Dual Fuel Range dimensions
75
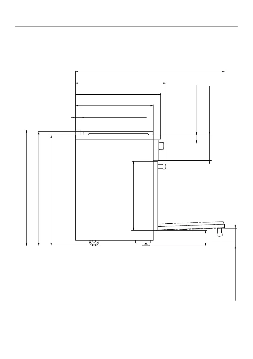
Detailed views of HR 1935
Side view of HR 1935
47 5/8" (1210mm)
5 9/16" (141mm)
(x)
22 1/16" (561mm)
8 1/8" (207mm)
35 1/2 - 37" (901.7 - 939.8mm)
36 9/16" - 38 1/16" (928.7 - 966.8mm)
37 1/16" - 38 9/16" (941.7 - 979.8mm)
1 3/4" (45mm)
27 1/4" (692mm)
28 15/16" (734.4mm)
1
24 15/16" (633mm)
1 9/16" (40mm)
(x) = Depending on the appliance height adjustment:
5" - 6 1/2" (127 mm - 165.1 mm)

Table of Contents

Related product manuals