EasyManua.ls Logo

Miele HR 1421 - Detailed Views of HR 1934

Miele HR 1421
124 pages
Print Icon
To Next Page IconTo Next Page
To Next Page IconTo Next Page
To Previous Page IconTo Previous Page
To Previous Page IconTo Previous Page
Loading...
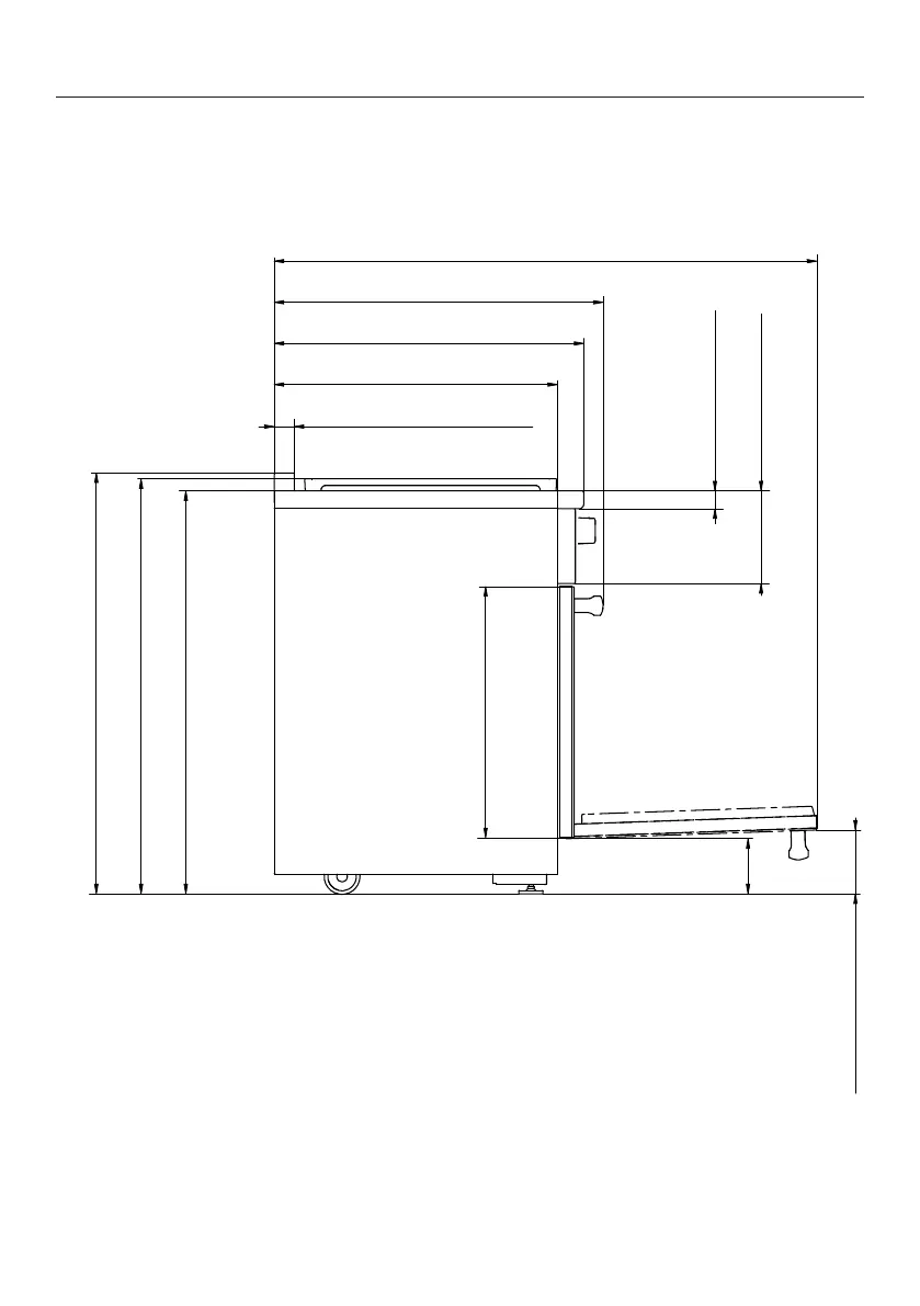
Dual Fuel Range dimensions
71
Detailed views of HR 1934
Side view of HR 1934
47 5/8" (1210mm)
5 9/16" (141mm)
(x)
22 1/16" (561mm)
8 1/8" (207mm)
35 1/2 - 37" (901.7 - 939.8mm)
36 9/16" - 38 1/16" (928.7 - 966.8mm)
37 1/16" - 38 9/16" (941.7 - 979.8mm)
1 3/4" (45mm)
27 1/4" (692mm)
28 15/16" (734.4mm)
1
24 15/16" (633mm)
1 9/16" (40mm)
(x) = Depending on the appliance height adjustment:
5" - 6 1/2" (127 mm - 165.1 mm)

Table of Contents

Related product manuals