EasyManua.ls Logo

Miele KM 2256 - Page 43

Miele KM 2256
64 pages
Print Icon
To Next Page IconTo Next Page
To Next Page IconTo Next Page
To Previous Page IconTo Previous Page
To Previous Page IconTo Previous Page
Loading...
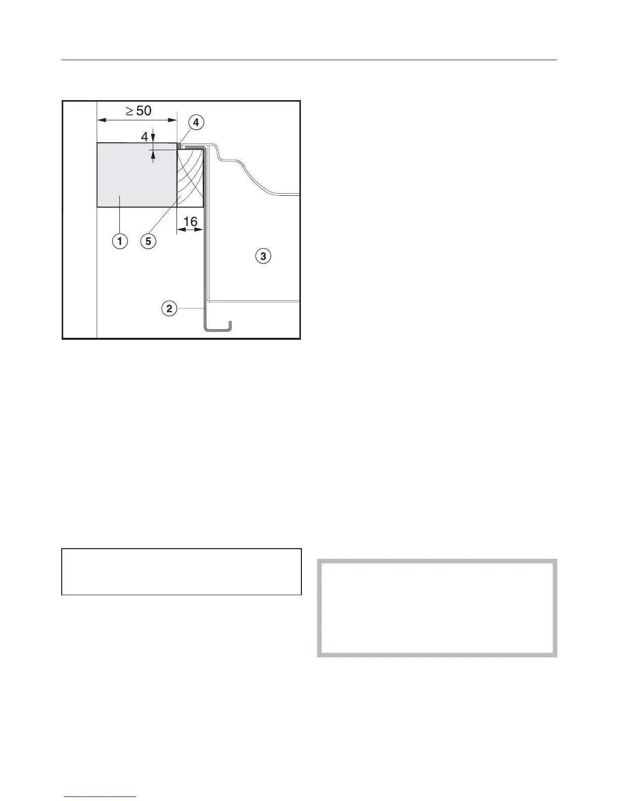
Solid wood and tiled worktops
a Worktop
b Fixing bracket (the fixing brackets
hold the lower section when the
upper section of the hob is
removed).
c Hob
d Gap
e Wooden frame 16 mm (to be
provided on site)
As the hob and worktop cut-out may
differ, the size of the gap d can vary.
^
Make the worktop cut-out according
to the dimensions given in the
building-in dimension diagrams.
Remember to maintain a minimum
safety distance (see "Safety
instructions for installation").
^
Fix the wooden frame e 4 mm below
the top edge of the worktop (see
diagram).
^
Fix the brackets b supplied.
^
Feed the hob connection cable down
through the cut-out in the worktop.
^
Centre the hob c in the cut-out.
^ Connect the hob to the mains (see
"Electrical connection").
^ Connect the appliance to the gas
supply (see "Gas connection").
^ Secure the appliance at the back and
front using the fixings supplied. See
"Securing the appliance".
^ Check that the hob works.
^
Seal the remaining gap d with a
silicone sealant that is heat-resistant
to at least 160 °C.
For granite and marble worktops,
only use silicone sealant that is
specially formulated for granite and
marble, and observe the sealant
manufacturer's instructions.
KM 2257
43

Other manuals for Miele KM 2256

Related product manuals