EasyManua.ls Logo

Miele SmartLine - Worktop Cutout - Surface-Mounted

Miele SmartLine
80 pages
Print Icon
To Next Page IconTo Next Page
To Next Page IconTo Next Page
To Previous Page IconTo Previous Page
To Previous Page IconTo Previous Page
Loading...
Installation
*INSTALLATION*
34
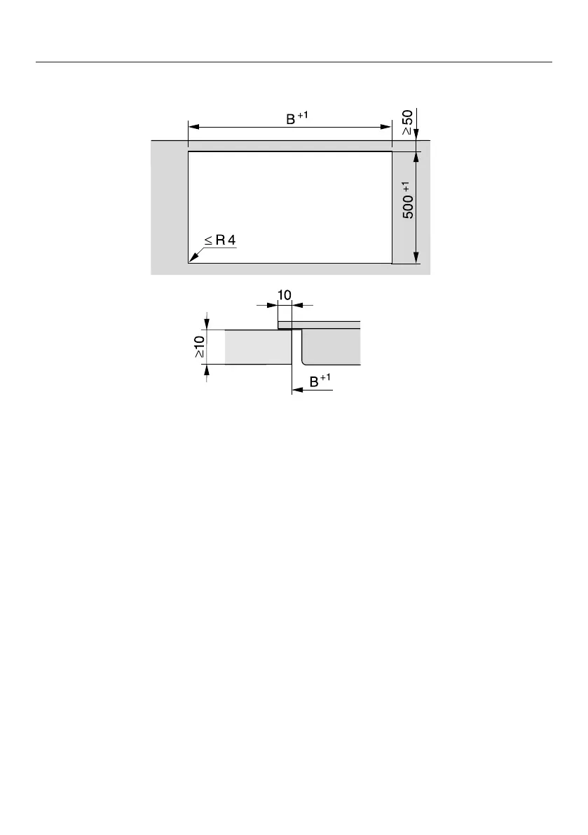
Worktop cutout – surface-mounted

Related product manuals