EasyManua.ls Logo

Minster SCRB-68 - CONTROL REPLACEMENT; Option A: SCRB-52;58 to SCRB-68 Conversion; SCRB-52;58 Replacement Worksheet

Minster SCRB-68
24 pages
Print Icon
To Next Page IconTo Next Page
To Next Page IconTo Next Page
To Previous Page IconTo Previous Page
To Previous Page IconTo Previous Page
Loading...
CONTROL REPLACEMENT
The SCRB-68 is the latest in a series of eddy current
adjustable speed drive controls produced by MIN-
STER. This latest generation unit incorporates the
functions of all of the previous controls. As such it can
replace any of those previous controls. There are three
options to replace the existing eddy current control with
the SCRB-68.
Option A: Conversion from a SCRB-52/58 to a
SCRB-68
Option B: Conversion from a SCRB-42/48 to a
SCRB-68
Option C: Conversion from a SCR-22/28 to a
SCRB-68
WARNING
VOLTAGE THAT COULD BE FATAL TO HUMAN LIFE
IS PRESENT WITHIN THE ELECTRICAL CONTROL
CIRCUITS. ONLY AUTHORIZED, EXPERIENCED
PERSONNEL SHOULD ATTEMPT THE INSTALLA-
TION AND SERVICING OF ELECTRICAL EQUIP-
MENT.
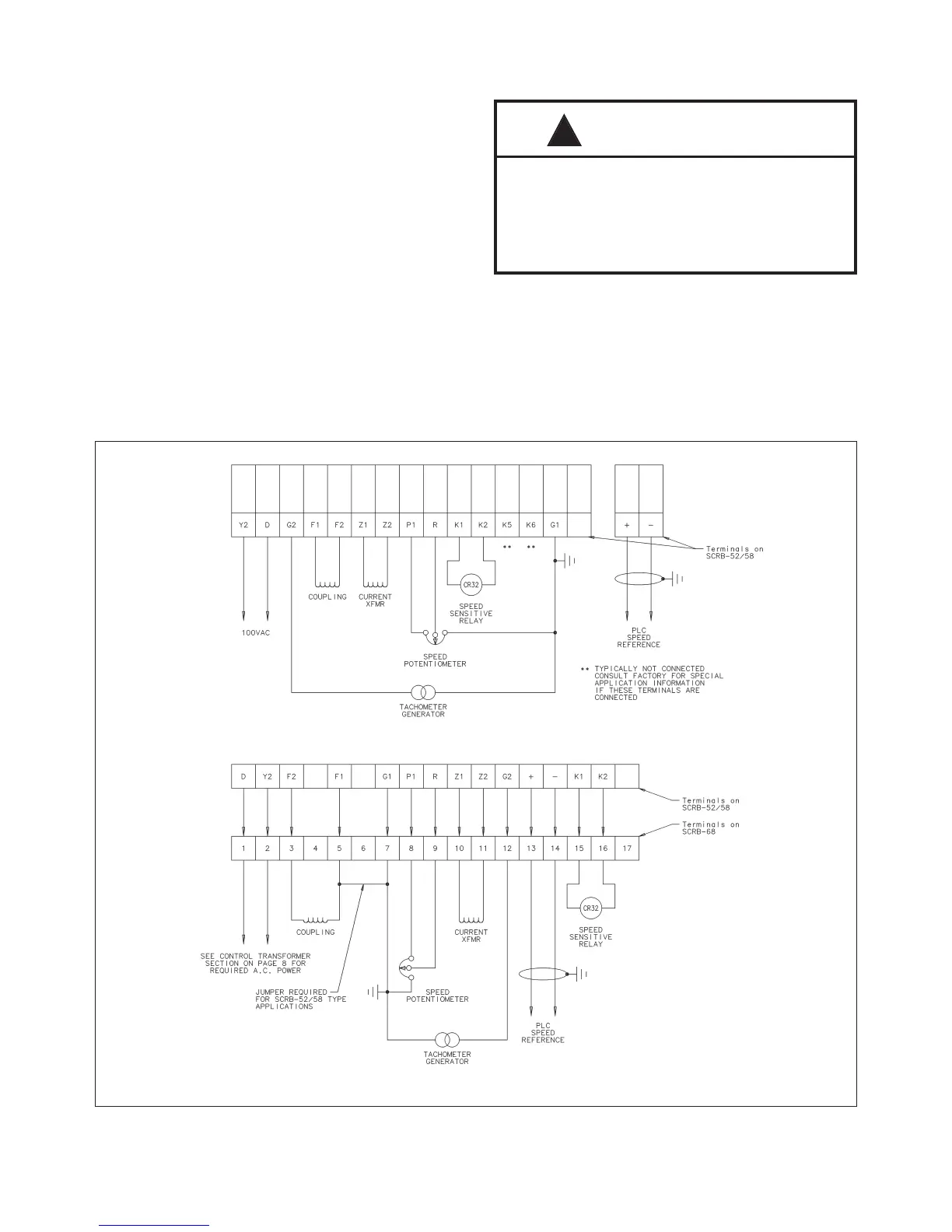
Option A: Conversion from a SCRB-52/58 to a
SCRB-68
When replacing a SCRB-52 Control Unit with a SCRB-
68 Control Unit, a 3.2 Amp fuse must be installed in the
100 volt AC power-in circuit and when replacing a
SCRB-58 Control, a 10 Amp fuse must be installed.
12
!
Figure 6. SCRB-52/58 replacement worksheet.