EasyManua.ls Logo

Mitsubishi MR-J4-100A - Page 414

Mitsubishi MR-J4-100A
640 pages
Print Icon
To Next Page IconTo Next Page
To Next Page IconTo Next Page
To Previous Page IconTo Previous Page
To Previous Page IconTo Previous Page
Loading...
11. OPTIONS AND AUXILIARY EQUIPMENT
11 - 83
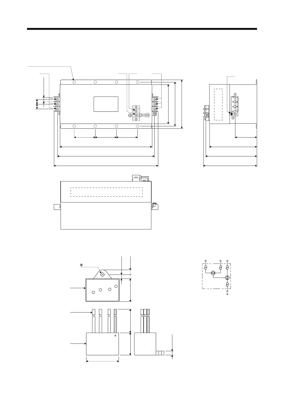
TF3040C-TX/TF3060C-TX
[Unit: mm]
180 ± 2
Approx.
91.5
Approx. 190
200 ± 5
M6
390 ± 2
100 ± 1
412 ± 5
438 ± 5
Approx. 17
3-M6
22 22
8-R3.25 Length 8 (for M6)
M4 M4
145 ± 2
3-M6
160 ± 1
175 ± 2
IN
100 ± 1 100 ± 1
(b) Surge protector
RSPD-250-U4
41 ± 1
28.5 ± 1 28 ± 1
4.2 ± 0.5
5.5 ± 1
11 ± 1
+30
0
200
4.5 ± 0.5
132
Lead
Case
Resin
[Unit: mm]
123

Table of Contents

Related product manuals