EasyManua.ls Logo

Mitsubishi PLA-A12BA - Outdoor Unit Dimensions

Mitsubishi PLA-A12BA
100 pages
Print Icon
To Next Page IconTo Next Page
To Next Page IconTo Next Page
To Previous Page IconTo Previous Page
To Previous Page IconTo Previous Page
Loading...
22
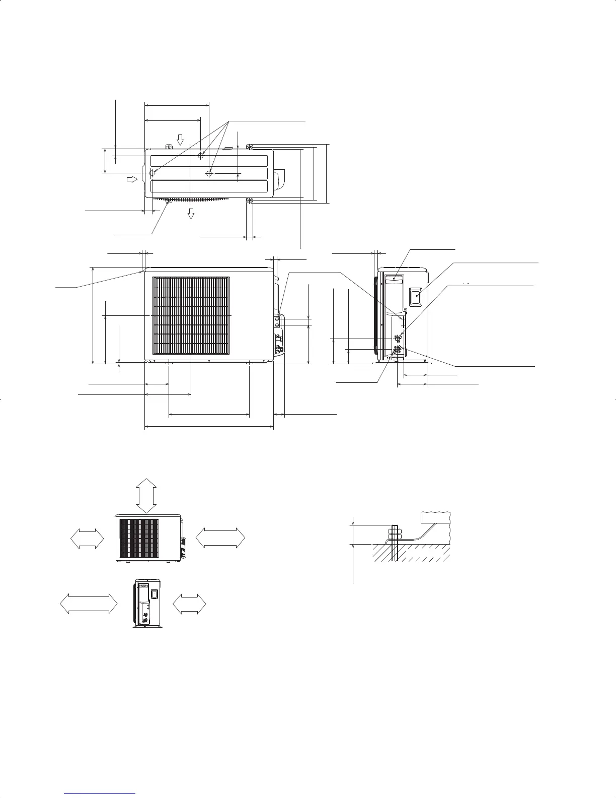
OUTDOOR UNIT Unit: mm (inch)
PUY-A12NHA3(-BS) PUY-A18NHA3(-BS) PUZ-A18NHA3(-BS)
1/2 conduit hole
144<5-21/32>
2-{22.2<7/8>
22<7/8>
38<1-1/2>241<9-1/2>
Min.100mm<3-15/16>
Piping and wiring connection can
be made from the rear direction only.
*1 In the place where short cycle tends to occur, cooling and heating capacity and power consumption might get lowered 10%.
Air outlet guide (optional PAC-SG58SG-E) will help them improve.
*2 If air discharges to the wall, the surface might get stained.
2 sides should be open in
the right, left and rear side.
Min.100mm<3-15/16> as long as
no obstacle is placed on the
rear and light-and-left sides
of the unit
*1
*2
*1
Air intake
Air discharge
4-oval hole
Air intake
Service panel
Connection for liquid pipe
Service panel for charge plug
Service port
Connection for gas pipe
Min.100mm<3-15/16>
Min.500mm<19-11/16>
Min.350mm<13-25/32>
Basically
open
Max.
<Foundation bolt height>
FOUNDATION
Please secure the unit firmly
with 4 foundation M10<W3/8> bolts.
(Bolts, washers and nut must
be purchased locally.)
18mm<23/32>
{33<1-5/16> drain hole
43.6<1-23/32>
152<6>
155
400<15-25/32>
347.5<13-11/16>
45.4<1-25/32>
365<14-3/8>
330<13>
300<11-13/16>
40<1-9/16>
Handle
600<23-5/8>
10<3/8>
300<11-13/16>
150<5-29/32>
287.5<11-11/32>
500<19-11/16>
800<31-1/2>
69<2-23/32>
183<7-7/32>
90<3-17/32>
155<6-3/32>
23<29/32>
32.5<1-9/32>
18<23/32>
FLARE {12.7<1/2>
FLARE {6.35<1/4>
Installation bolt pitch
PIPING-WIRING DIRECTION
Minimum installation space for outdoor unit
Free space around the outdoor unit
(basic example)
FOUNDATION BOLTS
DOCS1415revA.indd22DOCS1415revA.indd22 10.8.254:09:23PM10.8.254:09:23PM

Related product manuals