EasyManua.ls Logo

Mitsubishi PLA-A12BA - Page 23

Mitsubishi PLA-A12BA
100 pages
Print Icon
To Next Page IconTo Next Page
To Next Page IconTo Next Page
To Previous Page IconTo Previous Page
To Previous Page IconTo Previous Page
Loading...
23
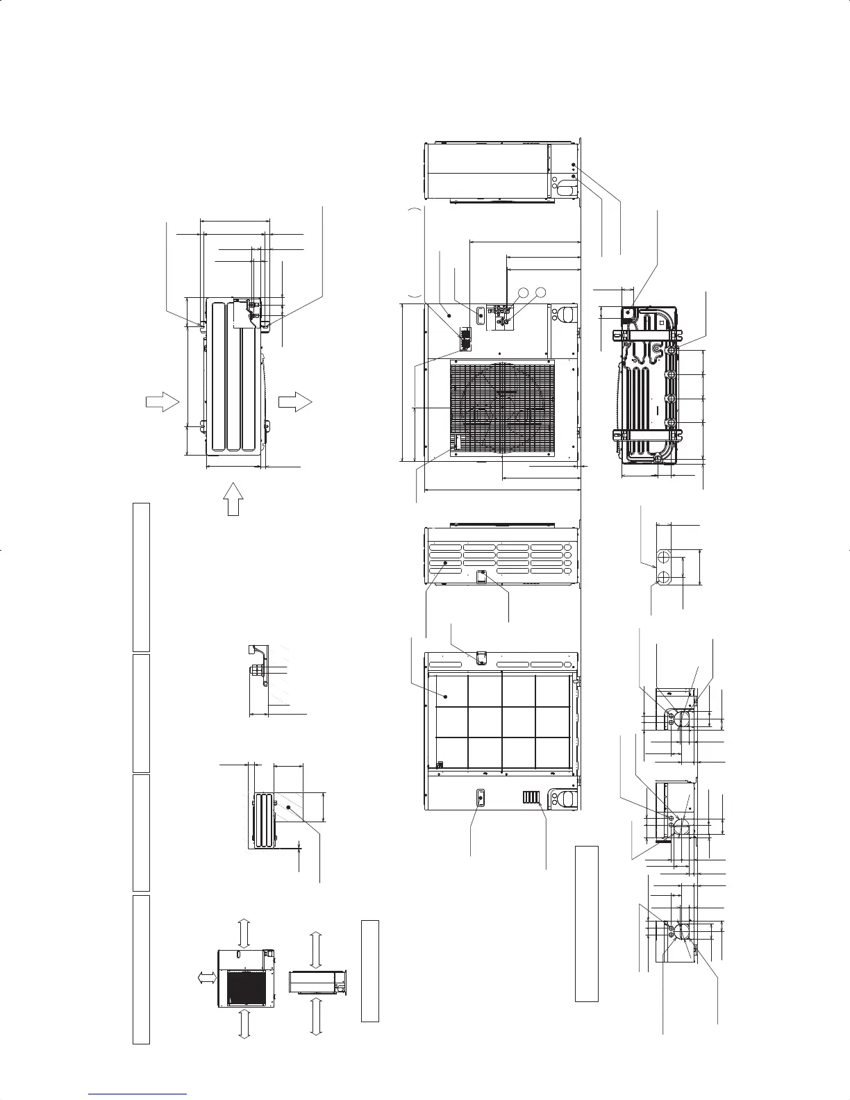
PUZ-A24NHA3(-BS) PUY-A24NHA3(-BS) Unit: mm (inch)
PUZ-A30NHA3(-BS) PUY-A30NHA3(-BS)
PUZ-A36NHA3(-BS) PUY-A36NHA3(-BS)
Min. 10mm
<3/8>
Min. 10mm
<3/8>
Min. 100mm
<3-15/16>
Min. 500mm
<19-11/16>
Min.
100mm
<3-15/16>
Min.
500mm
<191/16>
Max.
300mm<1-3/16>
Min.
10mm
<3/8>
Min.
500mm
<19-11/16>
Service space
FOUNDATION
<Foundation bolt height>
FREE
When installing the conduit,
Set the attachment to the
inner side of each panel.
1/2 Conduit attachment
2-[22.2<7/8>
40<1-9/16>
31<1-7/32>
74<2-19/32>
330 <13>
175 <6-7/8>
600 <23-5/8>
175 <6-7/8>
53 <2-3/32>
28 <1-3/32>
370 <14-9/16>
19 <3/4>
56 <2-7/32>
45 <1-25/32>
42 <1-21/32>
66 <2-5/8>
417 <16-13/32>
2-U Shaped notched hole
(Foundfation Bolt M10<W3/8>)
Side Air Intake
Rear Air Intake
Air Discharge
2-12o36 Oval hole
(Foundation Bolt M10<W3/8>)
30 <1-3/16>
Side Air Intake
Handle
Rear piping cover
Front piping cover
81<3-3/16>
219 <8-5/8>
30 <1-3/16>
71 <2-13/16>
71 <2-13/16>
Bottom piping hole
(Knockout)
Drain hole
(5-[33<1-5/16>)
Handle
Handle
Rear Air Intake
Air Intake
670 <26-3/8>
*1 443<17-7/16>
*1 447<17-19/32>
322 <12-11/16>
950 <37-13/32>
473 <18-5/8>
943 <37-1/8>
23<29/32>
2
1
Handle
Handle
Service panel
Earth terminal
Left···Power supply wiring
Reight···Indoor/Outdoor wiring
Terminal Block
Conduit hole
(2-
[
27<1-1/16>Knockout)
Right trunking hole
(Knockout)
Right piping hole
(Knockout)
65<2-9/16>
92<3-5/8>
40 <1-9/16> 45 <1-25/32>
19<3/4>
27<1-1/16>
23<29/32>
23<29/32>
73<2-7/8>
Conduit hole
(2-[27<1-1/16>Knockout)
Front trunking hole
(Knockout)
Front piping hole
(Knockout)
[9
2
<3-5/8>
Conduit hole
(2-
[
27<1-1/16>Knockout)
Rear trunking hole
(Knockout)
Rear piping hole
(Knockout)
220
<8-21/32>
145
<5-23/32>
145
<5-23/32>
145
<5-23/32>
55<2-3/16>
63<2-1/2>
63<2-1/2>
75
<2-31/32>
40<1-9/16>
45<1-25/32>
40<1-9/16>
23<29/32>
73<2-7/8>
63<2-1/2>
55<2-3/16>
27<1-1/16>
[92<3-5/8>
[
92<3
-
5
/8>
73<2-7/8>
27<1-1/16>
92<3-5/8>
92<3-5/8>
65<2-9/16>
95<3-5/8>
55<2-3/16>
Piping and wiring connections
can be made from 4 directions:
front, right, rear and below.
Dimensions of space needed
for service access are
shown in the below diagram.
Please secure the unit firmly
with 4 foundation (M10<W3/8>)
bolts. (Bolts and washers must
be purchased locally.)
The diagram below shows a
basic example.
Explantion of particular details are
given in the installation manuals etc.
1····Refrigerant GAS pipe connction (FLARE)[15.88<5/8>
2····Refrigerant LIQUID pipe connection (FLARE)[ 9.52<3/8>
*1 ····Indication of STOP VALVE connection location.
Example of Notes
Piping Knockout Hole Details
1 FREE SPACE (Around the unit)
2 SERVICE SPACE
3 FOUNDATION BOLTS
4 PIPING-WIRING DIRECTIONS
DOCS1415revA.indd23DOCS1415revA.indd23 10.8.254:09:23PM10.8.254:09:23PM

Related product manuals