EasyManua.ls Logo

Mitsubishi PLA-A12BA - PUZ;PUY Outdoor Unit Wiring Diagrams

Mitsubishi PLA-A12BA
100 pages
Print Icon
To Next Page IconTo Next Page
To Next Page IconTo Next Page
To Previous Page IconTo Previous Page
To Previous Page IconTo Previous Page
Loading...
36
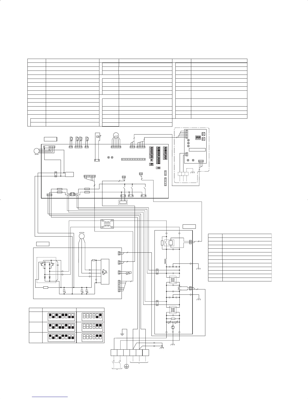
PUZ-A18NHA3 PUZ-A18NHA3-BS PUY-A12/18NHA3 PUY-A12/18NHA3-BS
TB1
MC
MF1
21S4
63H
TH3
TH6
TH7
TH8
TH32
LEV-A
CY1,CY2
Terminal Block<Power Supply, Indoor/Outdoor>
Motor for Compressor
Fan Motor
Solenoid Valve (Four-Way Valve)
High Pressure Switch
Thermistor<Outdoor Pipe>
Thermistor<Outdoor 2-Phase Pipe>
Thermistor<Outdoor>
Thermistor<Heatsink>
Thermistor<Shell>
Electronic Expansion Valve
Capacitor
ACL Reactor
Power Circuit Board
Connection Terminal<U/V/W-Phase>
P. B.
TABU/V/W
Noise Filter Circuit Board
Connection Terminal<L1-Phase>
Connection Terminal<Ground>
N.F.
LI/LO
Connection Terminal<L2-Phase>
NI/NO
EI,E2,E3
Fuse<T6.3AL250V>
Controller Circuit Board
Switch<
Forced Defrost, Defect History
Record Reset, Refrigerant Address>
Switch<Test Operation>
Switch<Function Switch>
Switch<Function Setup>
Switch<Pump Down>
Connector<Emergency Operation>
F1~F4
SW1
SW4
SW5
SW7
Switch<Function Setup>
SW8
SWP
CN31
CNM
CNVMNT
CNDM
Connector<A-Control Service Inspection Kit>
Connector
<Connected to Optional M-NET Adapter Board>
Connector <Connected for Option (Contact Input)>
C.B.
Converter
PFC
Power ModuleIPM
Main Smoothing CapacitorCB1~CB3
52C Relay
52C
SYMBOL
[LEGEND]
NAME SYMBOL NAME SYMBOL NAME
Connection Terminal<L1/L2-Phase>
TABR/S
Connector<Connection for Option>
SS
CNMNT
Connector
<Connected to Optional M-NET Adapter Board>
Switch<Model Select>
SW6
Switch
SW9
X51, X52, X55
Relay
SYMBOL
M-NET ADAPTER
NAME
TB7
CN5
CND
CN2M
SW1
SW11
Terminal Block<M-net connection>
Connector<Transmission>
Connector<Power Supply>
Connector<M-NET communication>
Switch<Status of communication>
Switch<Address setting : 1s digit>
SW12
LED1
LED2
LED3
LED4
LED5
Switch<Address setting : 10s digit>
LED<Power Supply : DC5V>
LED<Connection to Outdoor Unit>
LED<Transmission : Sending>
LED<Transmission : Recelving>
LED<Power Supply : DC12V>
LED1,LED2
LED<Operation Inspection Indicators>
P. B .
C. B.
CNF1
(WHT)
MF1
MS
3~
7
1
TRANS
CNDC
(PNK)
3
1
TH7/6
(RED)
63H
(YLW)
TH3
(WHT)
TH32
(BLK)
TH7 TH6 TH3TH32
412112
31
63H
LEV-A
(WHT)
LEV-A
M
LED1
LED2
61
CNVMNT
(WHT)
31
CNDM
(WHT)
CN51
(WHT)
3
1
5
1
CNMNT
(WHT)
CNM
(WHT)
51
3
5
SW7
SW6SW1
SW9
CN31
1
w1w1
SW5SW8SW4 SWP
14
X51
CNS
(WHT)
CNAC
(WHT)
SS
(WHT)
21S4
(GRN)
X52
F1
F2
F4
F3
21
43
21S4
31
1313
CN4
(WHT)
12
2
CN52C
(RED)
2
2
1
CN2
(WHT)
71
5
CN5
(WHT)
31
LED2
SW1
SW11
SW12
LED3
LED4
TB7
LED1
LED5
2
1
CND
(WHT)
CN2M
(WHT)
M-NET ADAPTER
M-NET
ABS
When M-NET adapter is connected
5
3
5
1
WHT
U
LI EI NI
LO NO
E2
E3
N. F.
2
2
1
3
1
1
3
2
1
2
CN5
(RED)
CNAC1
(WHT)
CNAC2
(RED)
CN52C
(BLK)
52C
RED
U
POWER SUPPLY
208 / 230V 60Hz
INDOOR
UNIT
TB1
L1 L2 GR S1 S2 S3
RED
BLU
YLW
GRN
ORN
BRN
CY2
CY1
CB1 CB2 CB3
TABU
TABV
TH8
IPM
TABW
TABR
TABS
CN3
(WHT)
CN2
(WHT)
CN4
(WHT)
CN5
(RED)
1
7
1
2
1
2
1
2
2
2
5
WHT
RED
PFC
RED
WHT
RED
WHT
ACL
MS
3~
BLK
WHT
RED
U
V
W
MC
PUZ only
123456
OFF
ON
PUZ-A18N
MODEL SW6
w1 MODEL SELECT
SW5
-
5.6
123456
OFF
ON
PUY-A12N
PUY-A18N
123456
78
78
78
OFF
ON
123456
OFF
ON
123456
OFF
ON
123456
OFF
ON
w2
w2. SW5-1 to 4 : Function switch
wUse copper supply wires.
CN51
Connector <Connected for Option (Signal output)>
X55
13
SV2
(BLU)
DOCS1415revA.indd36DOCS1415revA.indd36 10.8.254:09:26PM10.8.254:09:26PM

Related product manuals