EasyManua.ls Logo

Mitsubishi PLA-A12BA - Page 37

Mitsubishi PLA-A12BA
100 pages
Print Icon
To Next Page IconTo Next Page
To Next Page IconTo Next Page
To Previous Page IconTo Previous Page
To Previous Page IconTo Previous Page
Loading...
37
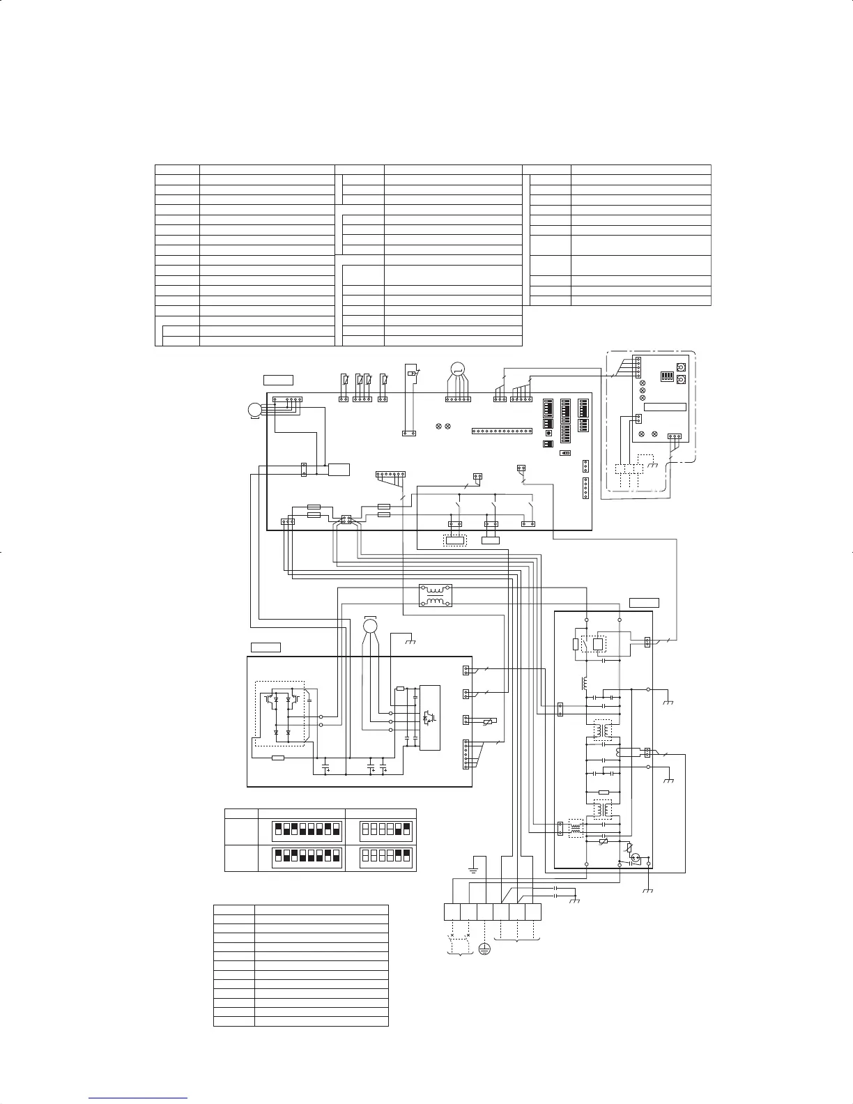
PUZ-A24NHA3 PUZ-A24NHA3-BS PUY-A24NHA3 PUY-A24NHA3-BS
P. B.
C. B.
CNF1
(WHT)
MF1
MS
3~
7
1
TRANS
CNDC
(PNK)
3
1
TH7/6
(RED)
63H
(YLW)
TH3
(WHT)
TH32
(BLK)
TH7 TH6 TH3TH32
412121
31
63H
LEV-A
(WHT)
LEV-A
M
LED1
LED2
61
CNVMNT
(WHT)
31
CNDM
(WHT)
CN51
(WHT)
3
1
5
1
CNMNT
(WHT)
CNM
(WHT)
51
3
5
SW7
SW6SW1
SW9
CN31
1
w1
w
1
SW5SW8SW4 SWP
14
X51
CNS
(WHT)
CNAC
(WHT)
SS
(WHT)
21S4
(GRN)
X52
F1
F2
F4
F3
21
43
21S4
31
13
SV2
(BLU)
X55
SV
13 13
CN4
(WHT)
12
2
CN52C
(RED)
2
2
1
CN2
(WHT)
71
5
CN5
(WHT)
31
LED2
SW1
SW11
SW12
LED3
LED4
TB7
LED1
LED5
2
1
CND
(WHT)
CN2M
(WHT)
M-NET ADAPTER
M-NET
ABS
When M-NET adapter is connected
5
3
5
1
WHT
U
U
LI
EI
NI
LO NO
E2
E3
N. F.
2
2
1
3
1
1
3
2
1
2
CN5
(RED)
CNAC1
(WHT)
CNAC2
(RED)
CN52C
(BLK)
52C
RED
POWER SUPPLY
208 / 230V 60Hz
INDOOR
UNIT
TB1
S1 S2 S3
RED
BLU
YLW
GRN
ORN
BRN
CY2
CY1
CB1 CB2 CB3
TABU
TABV
TH8
IPM
TABW
TABR
TABS
CN3
(WHT)
CN2
(WHT)
CN4
(WHT)
CN5
(RED)
1
7
1
2
1
2
1
2
2
2
5
WHT
RED
PFC
RED
WHT
RED
WHT
ACL
MS
3~
BLK
WHT
RED
U
V
W
MC
PUZ only
L1 L2 GR
SYMBOL
M-NET ADAPTER
NAME
TB7
CN5
CND
CN2M
SW1
SW11
Terminal Block<M-net connection>
Connector<Transmission>
Connector<Power Supply>
Connector<M-NET communication>
Switch<Status of communication>
Switch<Address setting : 1s digit>
SW12
LED1
LED2
LED3
LED4
LED5
Switch<Address setting : 10s digit>
LED<Power Supply : DC5V>
LED<Connection to Outdoor Unit>
LED<Transmission : Sending>
LED<Transmission : Recelving>
LED<Power Supply : DC12V>
TB1
MC
MF1
21S4
63H
TH3
TH6
TH7
TH8
TH32
LEV-A
ACL
Terminal Block<Power Supply, Indoor/Outdoor>
Motor for Compressor
Fan Motor
Solenoid Valve (Four-Way Valve)
High Pressure Switch
SV Solenoid Valve (Bypass Valve)
Thermistor<Outdoor Pipe>
Thermistor<Outdoor 2-Phase Pipe>
Thermistor<Outdoor>
Thermistor<Heatsink>
Thermistor<Shell>
Electronic Expansion Valve
Reactor
Power Circuit Board
Connection Terminal<U/V/W-Phase>
P.B.
TABU/V/W
Noise Filter Circuit Board
Connection Terminal<L1-Phase>
Connection Terminal<Ground>
N.F.
LI/LO
Connection Terminal<L2-Phase>
NI/NO
EI,E2,E3
Fuse<T6.3AL250V>
Controller Circuit Board
Switch<Forced Defrost, Defect History
Record Reset, Refrigerant Address>
Switch<Test Operation>
Switch<Function Switch>
Switch<Function Setup>
Switch<Pump Down>
Connector<Emergency Operation>
F1~F4
SW1
SW4
SW5
SW7
Switch<Function Setup>
SW8
SWP
CN31
CNM
CNVMNT
CNDM
LED1,LED2
LED<Operation Inspection Indicators>
Connector<A-Control Service Inspection Kit>
Connector
<Connected to Optional M-NET Adapter Board>
Connector <Connected for Option (Contact Input)>
C.B.
Converter
PFC
52C Relay
52C
SYMBOL
[LEGEND]
NAME SYMBOL NAME SYMBOL NAME
Connection Terminal<L1/L2-Phase>
TABR/S
CNMNT
Connector
<Connected to Optional M-NET Adapter Board>
Switch<Model Select>
SW6
Switch
SW9
X51,X52,X55
Relay
Power Module
IPM
Main Smoothing CapacitorCB1~CB3
CY1,CY2 Capacitor
123456
OFF
ON
PUZ-A24N
MODEL SW6
w1 MODEL SELECT
SW5
-
5.6
123456
OFF
ON
PUY-A24N
78
78
123456
OFF
ON
123456
OFF
ON
w2
w2. SW5-1 to 4 : Function switch
Connector<Connection for Option>
SS
wUse copper supply wires.
CN51
Connector <Connected for Option (Signal output)>
DOCS1415revA.indd37DOCS1415revA.indd37 10.8.254:09:26PM10.8.254:09:26PM

Related product manuals