EasyManua.ls Logo

Mitsubishi SRK35ZS-S

Mitsubishi SRK35ZS-S
335 pages
To Next Page IconTo Next Page
To Next Page IconTo Next Page
To Previous Page IconTo Previous Page
To Previous Page IconTo Previous Page
Loading...
-
87
-
'16 • SCM-T-199
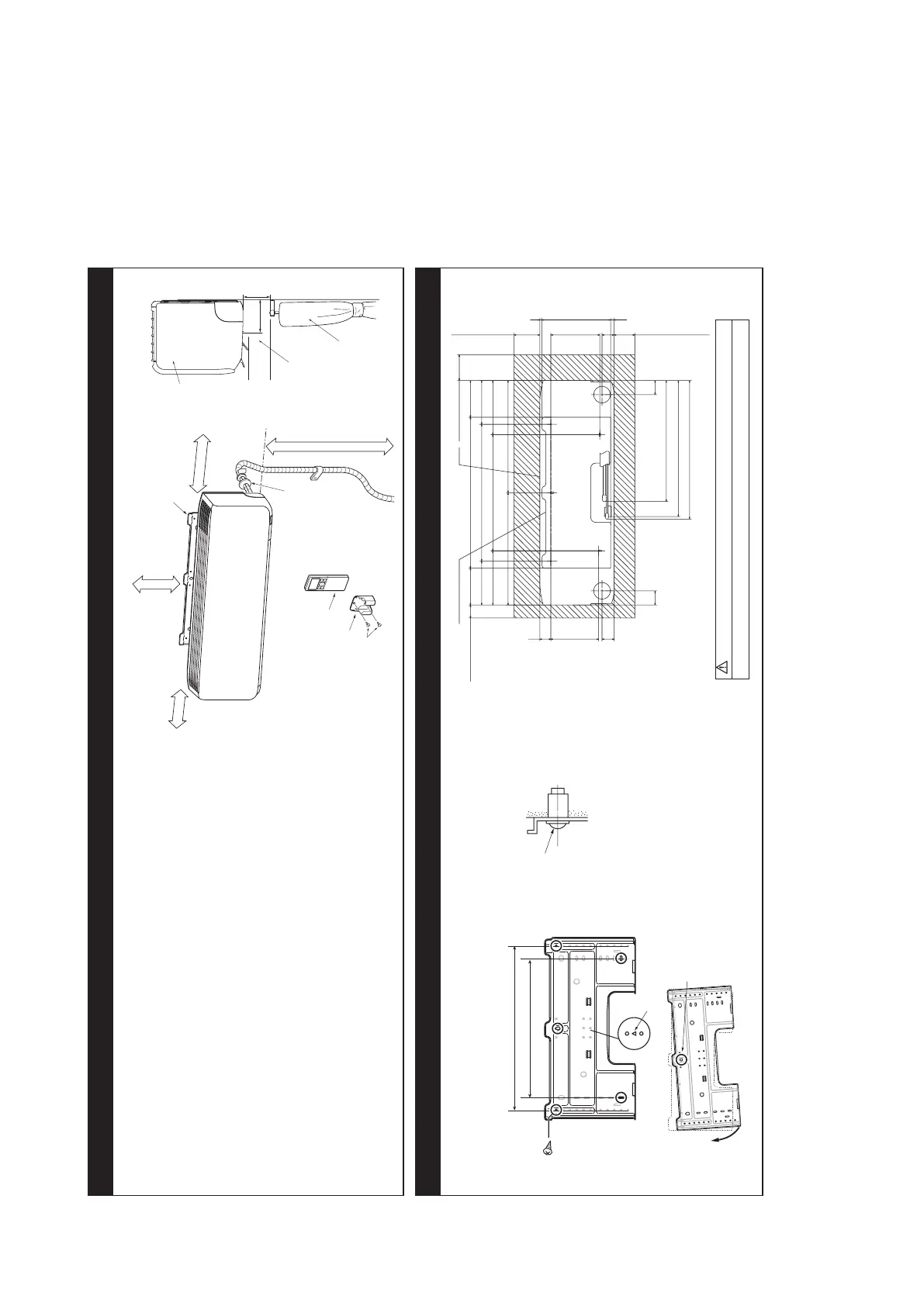
2.SELECTINGINSTALLATIONLOCATION
After getting customer’s approval, select installation location according to following guidelines.
1. Indoor unit
Wherethereisnoobstructiontotheairowandwherethecooledandheatedaircanbeevenly
distributed.
A solid place where the unit or the wall will not vibrate.
A place where there will be enough space for servicing. (Where space mentioned on the right side
can be secured.)
Where it is easy to conduct wiring and piping work.
A place where unit is not directly exposed to sunlight or street light.
A place where it can be easily drained.
A place separated at least 1m away from the television or the radio. (To prevent interference to im
-
ages and sounds.)
A place where this unit is not affected by the high frequency equipment or electric equipment.
Avoid installing this unit in place where there is much oil mist.
A place where there is no electric equipment or household.
Installtheindoorunitonthewallwheretheheightfromtheoortothebottomoftheunitismorethan
180 cm.
2.Wirelessremotecontrol
A place where the air-conditioner can receive the signal surely during operating the wireless remote
control.
A place where it is not affected by the TV and radio etc.
Do not place where it is exposed to direct sunlight or near heat devices such as a stove.
Wireless remote control
Remote control holder
Wood screws
5 cm minimum
from the wall
10 cm minimum
from the wall
Installation board
10 cm minimum from the ceiling
(a) Sleeve
180 cm minimum from the floor
Installation example
Indoor
unit
Obstacle such
as curtain
10
cm
8
cm
Be sure that the flap
of outlet should not
touch any obstacles.
3. INSTALLING INSTALLATION BOARD
Installation board should be installed on the wall which can support the weight of the indoor unit.
Adjustmentoftheinstallationboardinthehorizontaldirectionistobeconductedwithvescrewsina
temporary tightened state.
With the standard hole as a center, adjust the board and level it.
Standard hole
Bolt
(M6X12)
530
450
Mating mark for level surface
In case of fixing the unit on
concrete wall, use nut
anchor.
Installation board
50
(Service Space)
142.5
170
585
530
450210
435
(Service Space)
Unit
142.5
170
210
435
55
(Gas pipe)
SRK20, 25, 35 : 469
SRK50 : 475
Unit: mm
528 (Drain hose)
537 (Liquid pipe)
55
100
43
100
926613
190
47
80 (Service Space) (Service Space)
18547
CAUTION
Improper adjustment of the installation board can cause water leakage.

Table of Contents

Other manuals for Mitsubishi SRK35ZS-S

Related product manuals