EasyManua.ls Logo

Modine Manufacturing HD - Page 97

Modine Manufacturing HD
224 pages
Print Icon
To Next Page IconTo Next Page
To Next Page IconTo Next Page
To Previous Page IconTo Previous Page
To Previous Page IconTo Previous Page
Loading...
9
6-583.15
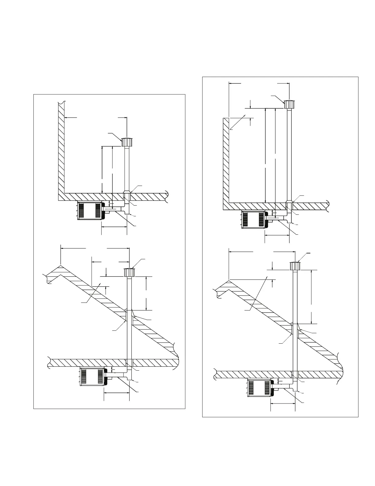
For single wall vent pipe and 10' or greater horizontal
distance to any portion of a building, the vent must terminate at
least 3' (2' for non-residential installations) above the highest
point where it passes through a roof of a building and at least 2'
higher than any portion of a building within a horizontal distance
of 10' (see Figure 9.1).
Figure 9.1 - Vertical Vent Termination for Single Wall
Vent Pipe and Greater Than 10’ Horizontally From
Adjacent Wall or Building
For single wall vent pipe and less than 10' horizontal distance
to any portion of a building, the vent must terminate 2' higher
than any portion of that building (see Figure 9.2).
Figure 9.2 - Vertical Vent Termination for Single Wall
Vent Pipe and 10’ or Less Horizontally From Adjacent
Building or Building
B10. Once venting is complete, proceed to the section titled
“Installation – Gas Connections”.
* 2 FEET MINIMUM FOR
NON-RESIDENTIAL
INSTALLATIONS, BUT
SIZE ACCORDING TO
EXPECTED SNOW DEPTH
3 FEET MIN*
GREATER THAN 10 FEET
TO WALL OR ADJOINING
BUILDING
5 FEET MIN
LISTED
TERMINAL
3 FEET MIN*
GREATER
THAN 10 FEET
10 FEET
2 FEET MIN*
12" MIN
RECOMMENDED
4" MIN
12" MIN
RECOMMENDED
4" MIN
TEE WITH DRIP LEG
AND CLEANOUT CAP
ROOF FLASHING
USE LISTED THIMBLE
THROUGH CEILING
USE LISTED THIMBLE
THROUGH CEILING
TEE WITH DRIP LEG
AND CLEANOUT CAP
ROOF FLASHING
USE LISTED THIMBLE
THROUGH ROOF
LISTED TERMINAL
HEIGHT ABOVE
ANY ROOF SURFACE
WITHIN 10 FEET
DOWNWARD SLOPE
1/4" PER FOOT
TOWARD DRIP LEG
DOWNWARD SLOPE
1/4" PER FOOT
TOWARD DRIP LEG
INSTALLATION - VENTING
3 FEET MIN*
10 FEET OR LESS TO
WALL OR ADJOINING
BUILDING
5 FEET MIN
LISTED
TERMINAL
3 FEET MIN*
10 FEET OR
LESS
2 FEET MIN*
12" MIN
RECOMMENDED
4" MIN
12" MIN
RECOMMENDED
4" MIN
2 FEET MIN*
TEE WITH DRIP LEG
AND CLEANOUT CAP
ROOF FLASHING
USE LISTED THIMBLE
THROUGH CEILING
USE LISTED THIMBLE
THROUGH CEILING
TEE WITH DRIP LEG
AND CLEANOUT CAP
ROOF FLASHING
USE LISTED THIMBLE
THROUGH ROOF
LISTED TERMINAL
HEIGHT ABOVE
ANY ROOF SURFACE
WITHIN 10 FEET
DOWNWARD SLOPE
1/4" PER FOOT
TOWARD DRIP LEG
DOWNWARD SLOPE
1/4" PER FOOT
TOWARD DRIP LEG
HEIGHT ABOVE ANY
PORTION OF WALL OR
ADJOINING BUILDING
WITHIN 10 FEET
* 2 FEET MINIMUM FOR
NON-RESIDENTIAL
INSTALLATIONS, BUT
SIZE ACCORDING TO
EXPECTED SNOW DEPTH

Table of Contents

Other manuals for Modine Manufacturing HD

Related product manuals