EasyManua.ls Logo

Modine Manufacturing MPR30 - Page 43

Modine Manufacturing MPR30
68 pages
Print Icon
To Next Page IconTo Next Page
To Next Page IconTo Next Page
To Previous Page IconTo Previous Page
To Previous Page IconTo Previous Page
Loading...
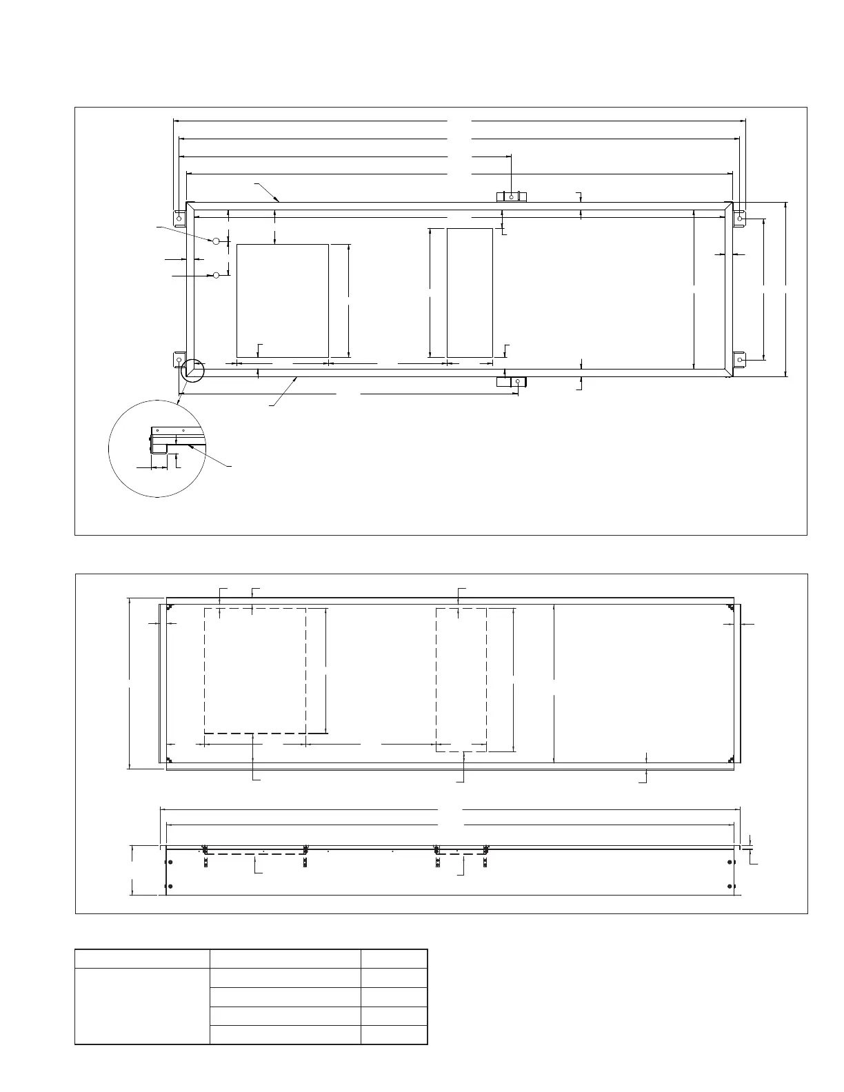
43MCP15-500.9
Figure 43.1 - Unit Base Dimensions (inches)
BASE ASSEMBLY AS
VIEWED FROM BOTTOM
RETURN/
EXHAUST
AIR
OPENING
SUPPLY AIR
OPENING
1.37
INSIDE BASE ASSEMBLY DETAIL
VIEW AS VIEWED FROM SIDE
LANDING AREA
FOR ROOF CURB
35.00
49.22
163.22
40.00
28.25 36.36 14.0013.11
10.73
5.72
1.75" DIA.
FURNACE
CONDENSATE
DRAIN LINE HOLE
(CONDENSING
FURNACES ONLY)
9.76
10.50
168.00
54.00
3.50
3.50
UNIT ACCESS
SIDE
CONDENSING
SECTION SIDE
2.00" DIA.
ELECTRICAL
ENTRY HOLE
2.39
2.39
2.39
2.39
2.39
43.72
176.00
172.50
102.25
104.19
Table 43.3 - Roof Curb Weight (approx) - lbs.
Section Description Weight
Roof Curb
14” - Insulated 259
14” - Uninsulated 266
24” - Insulated 394
24” - Uninsulated 401
Figure 43.2 - Unit Roof Curb Dimensions (inches)
DIMENSIONS - B-CABINET UNIT BASE/ROOF CURB (W/ ENERGY RECOVERY)
SUPPLY AIR
OPENING
LOCATION
RETURN/
EXHAUST AIR
OPENING
LOCATION
RETURN AIR DUCT
CONNECTOR ACCESSORY
(OPTIONAL)
SUPPLY AIR DUCT
CONNECTOR ACCESSORY
(OPTIONAL)
44.25
INSIDE
1.75
1.03
1.75
1.75
1.75
3.22
47.75
161.75
158.25
INSIDE
1.12
14.0 OR 24.0
SEE SCHEDULE
40.00
8.23
1.03
35.00
10.62 28.25 36.36 14.00
CURB ASSEMBLY AS
VIEWED FROM TOP

Related product manuals