EasyManua.ls Logo

Mono Eco Connect Plus FG159

Default Icon
116 pages
To Next Page IconTo Next Page
To Next Page IconTo Next Page
To Previous Page IconTo Previous Page
To Previous Page IconTo Previous Page
Loading...
Installation and Operation Manual Eco Connect+ Convection | 4/5/7/10-Tray | Steam
FG1BX-UK-MAN-0300 | Rev. C23 (July 2023) MONO 101
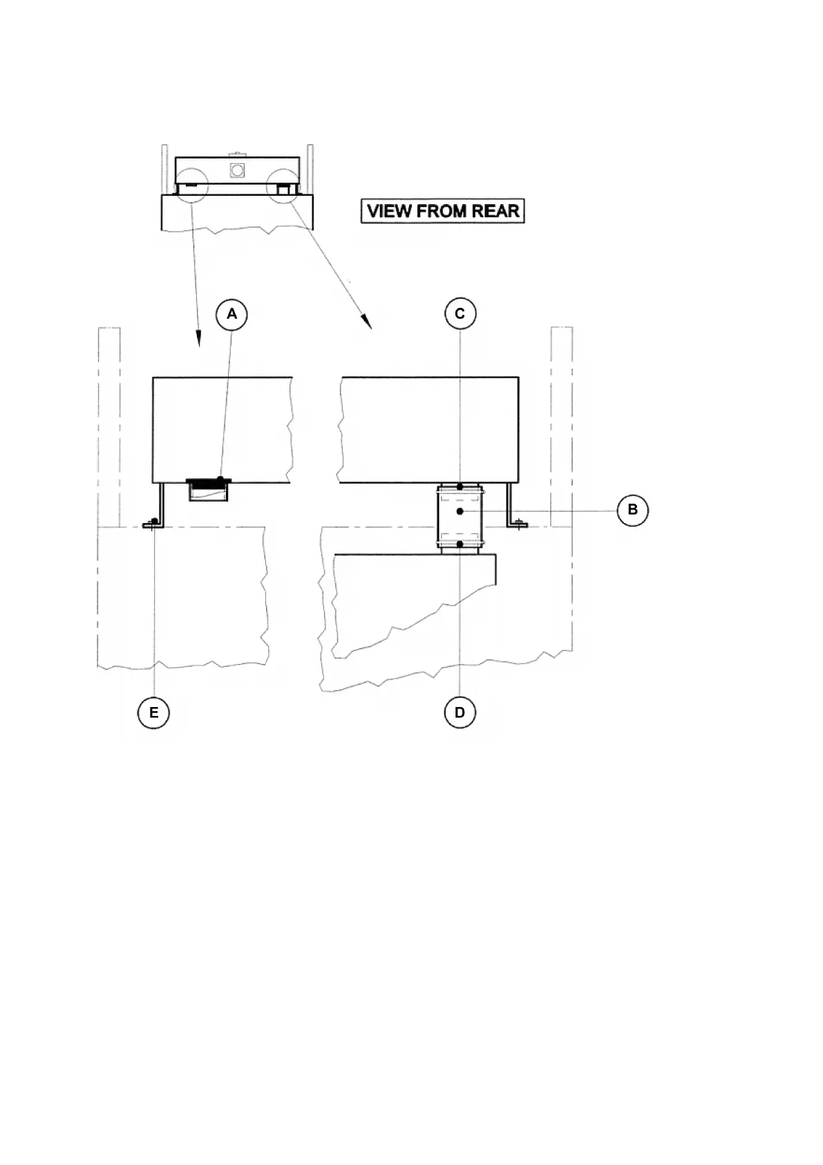
Figure 42: Installation of a condenser unit

Other manuals for Mono Eco Connect Plus FG159

Related product manuals