EasyManua.ls Logo

Motorola ASTRO Digital Spectra Plus - HLN6837 E ASTRO Spectra Plus Vtrans Schematic

Motorola ASTRO Digital Spectra Plus
442 pages
To Next Page IconTo Next Page
To Next Page IconTo Next Page
To Previous Page IconTo Previous Page
To Previous Page IconTo Previous Page
Loading...
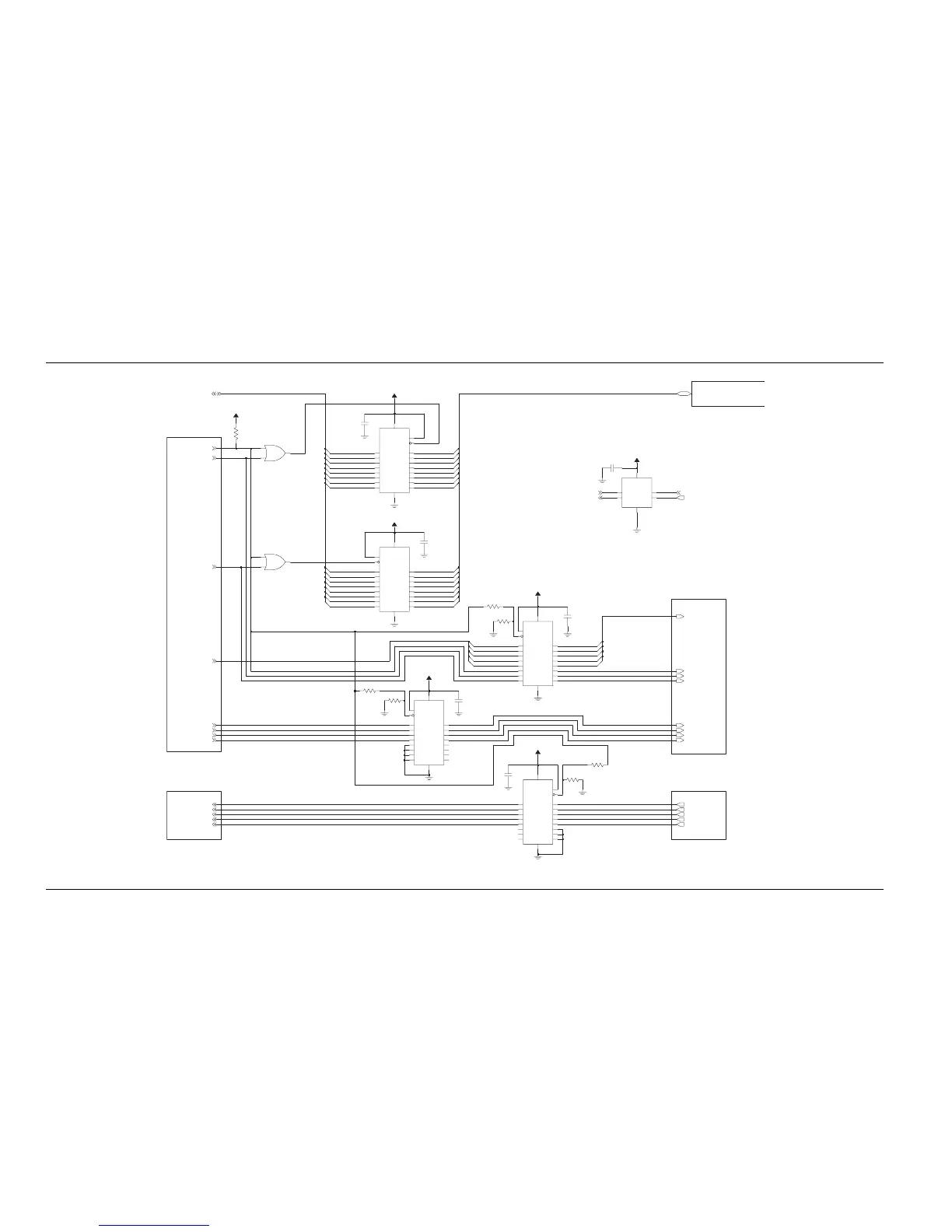
7-78 Schematics, Component Location Diagrams and Parts Lists: ASTRO Spectra Plus VOCON Section
September 5, 2008 6881076C25-E
HLN6837E ASTRO Spectra Plus VTrans Schematic
KRSIC_DB(7:0)
KRSIC_DB(7:0)
10K
R352
VCC2.85
MC74HC32A
U602-3
9
10
8
KRSIC_AB(4:0)
KRSIC_WR
RESET_OUT
QSCKB
MOSIB
KRSIC_SEL
KRSIC_RD
KRSIC_CS
BRAVO TO KRSIC
12
13
11
U602-4
MC74HC32A
6
1
2
3
0
4
5
7
KRSIC_AB(4:0)
Note:
If R353, R355, and R357 are placed, do not place R354, R356, and R358
BRAVO FROM KRSIC
ABA_RXD
ABA_FSYNC
ABA_CLK
8Khz_DSP_int
MISOB
Q6
Q7
VCC
EN_OE
GND
Q0
Q1
Q2
Q3
Q4
Q5
D1
D2
D3
D4
D5
D6
D7
EN_LE
U421
D0
0.1uF
C515
VCC3.0
DNP
13
12
20
11
1
10
19
18
17
16
15
14
3
4
5
6
7
8
9
MC74LCX573
2
0
R355
0
R356
4
3
2
1
0
DNP
0
R353
R354
0
VCC3.0
Q5
Q6
Q7
20
VCC
EN_LE
EN_OE
GND
Q0
Q1
Q2
Q3
Q4
D0
D1
D2
D3
D4
D5
D6
D7
U420
C511
0.1uF
14
13
12
11
1
10
19
18
17
16
15
MC74LCX573
2
3
4
5
6
7
8
9
0
4
3
2
1
KRSIC_AB_3(4:0)
KRSIC FROM BRAVO
O
O
O
O
O
O
O
O
RESET_OUT_3
KRSIC_SEL_3
MOSIB_3
QSCKB_3
KRSIC_CS_3
KRSIC_RD_3
KRSIC_WR_3
KRSIC_AB_3(4:0)
KRSIC TO BRAVO
I
I
I
I
I
ABA_RXD_3
ABA_FSYNC_3
ABA_CLK_3
8Khz_DSP_3
MISOB_3
DNP
Q3
Q4
Q5
Q6
Q7
20
VCC
D6
D7
EN_LE
EN_OE
GND
Q0
Q1
Q2
D0
D1
D2
D3
D4
D5
MC74LCX573
U422
R357
0
R358
0
0.1uF
C516
VCC2.85
16
15
14
13
12
8
9
11
1
10
19
18
17
2
3
4
5
6
7
14
Q5
13
Q6
12
Q7
VCC
5
EN_LE
EN_OE
10
GND
19
Q0
18
Q1
17
Q2
Q3
16
15
Q4
D0
D1
D2
D3
D4
D5
D6
D7
U417
0
1
7
6
2
3
4
20
11
1
2
3
4
5
6
7
8
9
MC74LCX573
C509
0.1uF
VCC2.85
1
2
3
4
0
6
5
7
VCC3.0
Q5
14
Q6
13
Q7
12
VCC
20
EN_LE
11
EN_OE
1
GND
10
Q0
19
Q1
18
Q2
17
Q3
16
Q4
15
D0
2
D1
3
D2
4
D3
5
D4
6
D5
7
D6
8
D7
9
U419
MC74LCX573 0.1uF
C510
5
6
7
4
2
3
0
1
TOUT_14_10
RESET_OUT
SELECT
VCC
A
B0
B1
GND
I
5
VCC2.85
U423
NLASB3157
4
3
1
2
6
LOGIC_BOOT
LH_RESETI
0.1uF
C514
KRSIC DATA
BUS
KRSIC_DB_3(7:0)
KRSIC_DB_3(7:0)

Table of Contents

Related product manuals