EasyManua.ls Logo

Motorola Professional GP340 - Lowband (30-50 MHz) Voltage Controlled Oscillator

Motorola Professional GP340
290 pages
To Next Page IconTo Next Page
To Next Page IconTo Next Page
To Previous Page IconTo Previous Page
To Previous Page IconTo Previous Page
Loading...
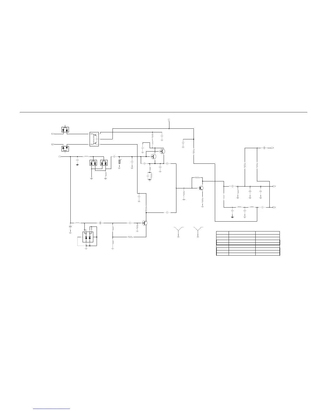
Lowband PCB 8485658Z03 / Schematics 4-9
2462587T19 220 nH
RX VCO
0.15 Vdc RX
3.25 Vdc TX
3.23 Vdc RX
2113743N32 18 pF
Part Number
C215 2113740L40 82 pF 2113740L38 68 pF
VCO TOP
-14dBm RX
-12dBm TX
VCO BOTTOM
+6 dBm
C202
2113743N42 47 pF
+4dBm TX
-22dBm RX
2.9 Vdc
4.45 Vdc RX
0 Vdc TX
4.56 Vdc
4.52 Vdc TX
0 Vdc RX
+4dBm RX
-16dBm TX
L207 2405452C63 1.35 uH
+11 dBm RX
-7 dBm Tx
+7 dBm TX
+15.25 dBm RX
L208
2462587T19 220 nH
2405452C27 4.8 uH
2113743N40 39 pF
C203 2113743N34 22 pF
0.8 Vdc
RECEIVE -47dBm SIGNAL AT 35.04MHz WITH 1KHz TONE.
RF MEASUREMENTS MADE WITH BOONTON 92 MILLIVOLTMETER.
-16 dBm RX
0 dbm TX
Value Part Number Value
R1 29.7 - 42 MHz R2 35 - 50 MHz
L209 2462587T20 270 nH
2462587T20 270 nH
C222
TX_VCO
Designator
0 Vdc TX
L207
.01uF
620nH
L204
4.8uH
C202
56
R236
47pF
C216
C221
30pF
82pF
C229
.01uF
1K
R234
2.2K
R233
C230
.01uF
C214
36pF
L215
.01uF
C227
SHIELD
SH203
5.45nH
1.35uH
L203
C203
22pF
270nH
L208
3.9
R237
120nH
L212
CR202
16pF
C226
R238
1K
C215
82pF
1.35uH
L201
CR203
C218
.01uF
R232
30K
2pF
C224
C201
SHIELD
SH202
1000pF
100
R203
1.35uH
L210
56pF
C231
S
U207
Q204
D
L209
270nH
330nH
L211
.01uF
C225
CR201
U203
Q202
D
S
R204
180
56
R206
C297
.01uF
50-300MHz
TR201
RESONATOR
C219
C235
56pF
C228
.01uF
68
R231
10pF
L202
1.35uH
Q203
D
S
CR204
820
R235
6.8pF
C220
Q201
5.1pF
C223
VCTRL
AUX3
AUX2
PRE_IN
VSF
TX_INJ
RX_INJ
FL0830469O

Table of Contents

Related product manuals