EasyManua.ls Logo

Motorola Professional GP340 - 300 R1 (300-350 MHz) Transmitter

Motorola Professional GP340
290 pages
To Next Page IconTo Next Page
To Next Page IconTo Next Page
To Previous Page IconTo Previous Page
To Previous Page IconTo Previous Page
Loading...
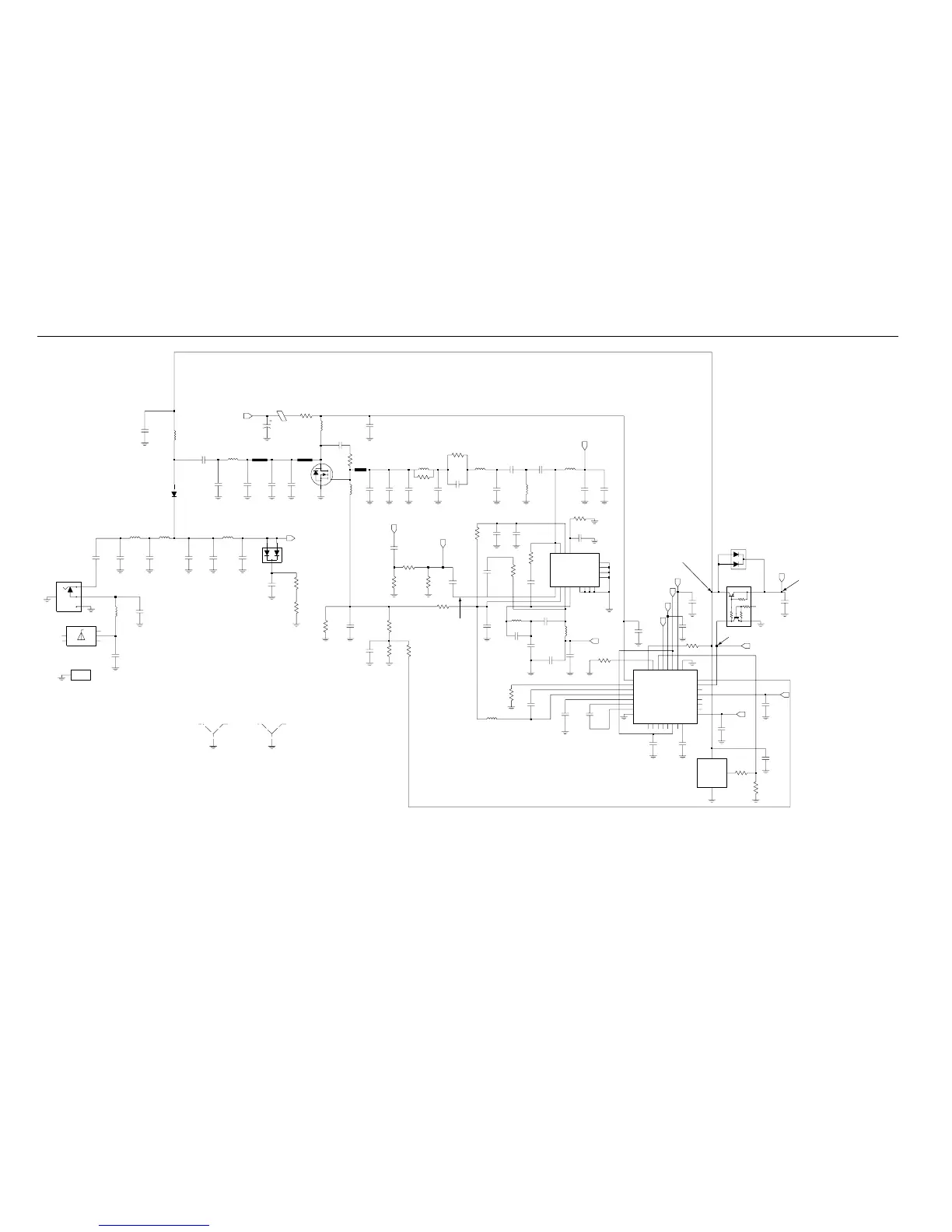
4-10 PCB 8485726Z01 - Schematics
VL
6
VLIM
19
TEMP
30
V10
14
V45
16
17
V5EXT
20
VAR1
18
VAR2
24
VAR3
VG
15
22
NA
Q
11
QX
10
1
RFIN
RS
21
31
RSET
RX
23
T1
2
CLK
26
CQ
12
CQX
13
DATA
28
F168
9
GND1
8
GND2
25
INT
4
U102
H99S
ANO
32
BPOS
27
CEX
29
CI
3
CJ
5
CL
7
C138
330pF
CR105
GND
3
1
POS
2
VOUT
R131
LM50
10K
R130
18K
330pF
C170
C110
330pF
0.1uF
C126
.022uF
C173
5V
TX_BIAS
RESET
UNSWB+
DATA
CLK
CSX
330pF
C122
C105
330pF
4
1
3
330pF
C132
Q111
2
6
330pF
C174
R133
UNSWB+
NU
10K
4.7K
47K
47K
1000pF
C127
L115
C133
390nH
1000pF
C134
3300pF
C135
.022uF
C166
330pF
L113
C129
5.6nH
24pF
100pF
C165
.022uF
C131
22nH
L114
200K
R109
12K
R132
22pF
C169
UNSWB+
RFIN
6
RFOUT1
7
RFOUT2
1
VCNTRL
14
VD1
2
VG1
3
VG2
GND1
5
GND2
12
GND3
13
GND4
8
NC1
9
NC2
10
NC3
15
NC4
16
U101
09Z67
11
G2
4
15pF
C120
100pF
C121
C150
.022uF
C151
330pF
C161
0.1uF
200
R161
330pF
C130
C128
.022uF
56nH
L112
R108
5.6K
L160
15.0nH
15pF
C160
.022uF
C152
UNSWB+
NU
C116
C117
47pF
11.03nH
L109
NU
L108
10
R106
100pF
C115
C118
NU
C125
100pF
100pF
C295
300
R112R110
300
20
R111
R107
C180
TX_INJ_1
TX_INJ
NU
NU
Microstrip Microstrip
1
2
3
C111
24pF
C112
68pF
L107
33.47nH
0.075
R102
L117
22.0nH
C113
NU
BEAD
E101
C114
330pF
C123
10uF
200
R172
0.1uF
C172
C181
Q110
Microstrip
NU
L105
C108
330pF
390nH
240
R170
240
R101
C109
100pF
10.29nH
L106
UNSWB+
3.3pF
1
A1
2
A2
K
3
C107
CR102
L104
6.2pF
C106
RX_IN
CR101
L102
19.61nH
L101
11pF
C104C103
22pF
C102
11pF
C101
100pF
4
GND
1
2
3
J101
RF_JACK
C141
TAB5
5
C140
TAB1
1
TAB2
2
TAB3
3
TAB4
4
ANTENNA_NUT
J102
23.57nH
L116
HEATSINK
H101
POS
1
NU
NU
43K
R120
330pF
C119
330pF
C171
R173
180K
43K
R171
R174
NU
SH100
SHIELD
1
SHIELD
SH101
1
HF SHIELD PA SHIELD
R104
47K
C188
100pF
19.61nH 19.61nH
R192
0
R193
200
C193
0.1uF
1
2
3
CR103
3dBM@300.025MHz Tx
3dBM@349.975MHz Tx
7.137V Tx
7.19V Tx
0.278V Tx
ZMY0130401-O
300R1 (300-350MHz) Transmitter

Table of Contents

Related product manuals