EasyManua.ls Logo

Nibe F2015 - Several F2015 Together with SMO 10 and Water Heater (Floating Condensing)

Nibe F2015
44 pages
Print Icon
To Next Page IconTo Next Page
To Next Page IconTo Next Page
To Previous Page IconTo Previous Page
To Previous Page IconTo Previous Page
Loading...
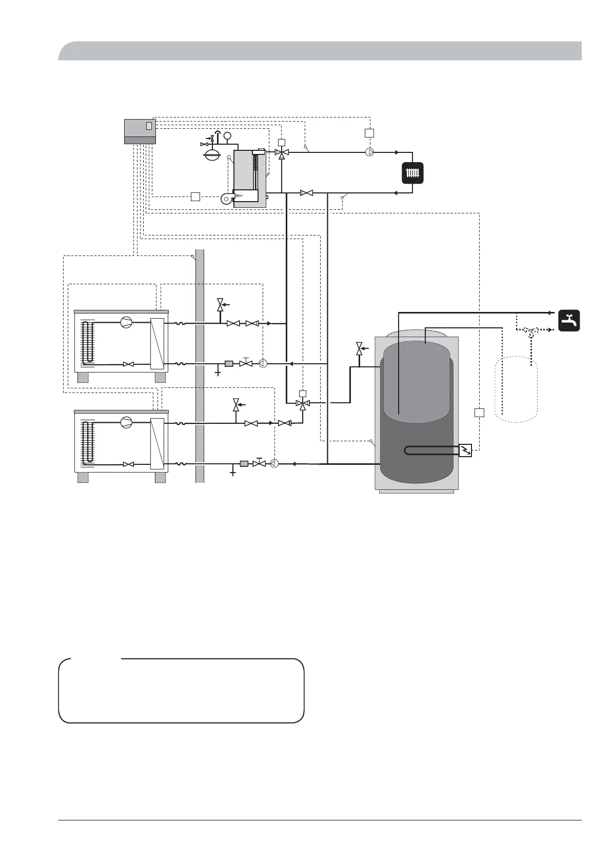
Several F2015 together with SMO 10 and water heater (floating condensing)
HR
HR
HR
FIGHTER 2020 VP2
FIGHTER 2020 VP1
SV1
FG1
RG1
SMO 10
CP1
PG
UG
LP2
LP1
VVG
VXV1
P
SÄV
SÄV
SÄV
AV
AV BV
BV
RV
TV
RV
TV
BV
SF
SF
) +3
) +3
SMO 10 controls up to nine F2015 (of which max one for
hot water), immersion heater, circulation pump, shunt, etc.
F2015 works with floating condensing against the heating
system and prioritises hot water charging via three way valve
VXV1. F2015 VP1 produces hot water.
If F2015 cannot meet the heating demand, additional heat
is shunted in from the oil-fired boiler.
When additional heat is engaged, hot water is heated using
the immersion heater in the hot water heater.
NOTE
To prevent interference, sensor cables and communic-
ation cables must be separated (min 20 cm) from high
voltage cables when cable routing.
9F2015
For the Installer
Docking

Table of Contents

Related product manuals