EasyManua.ls Logo

Nibe SPLIT ACVM270 - Page 19

Nibe SPLIT ACVM270
64 pages
Print Icon
To Next Page IconTo Next Page
To Next Page IconTo Next Page
To Previous Page IconTo Previous Page
To Previous Page IconTo Previous Page
Loading...
Wood
NIBE ACVM
10-270
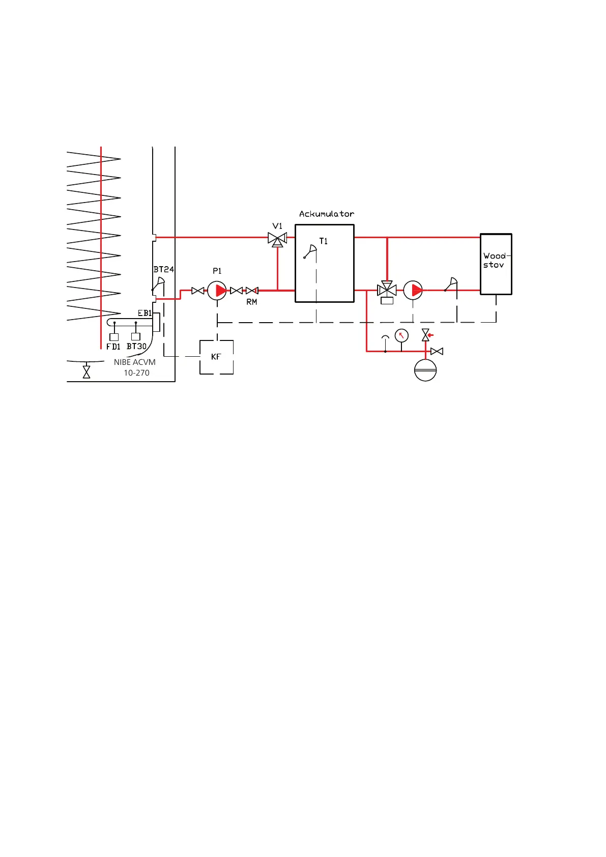
Function
By connecting a wood-fired boiler via accumulator tank to NIBE SPLIT ACVM270, hot water and heat to the house
can be produced by it.
If there is no heat in the accumulator tank, heat and hot water are produced by the heat pump or by the internal
immersion heater according to the selected operating mode.
The wood installation must have an external charge automatic device (KF) as follows:
Max temperature 65 °C at BT24. P1 stops.
Min temperature 55 °C at T1 for P1 to start.
V1 must limit the temperature to 65 °C.
Accumulators and primary system design are dimensioned by the boiler supplier. Ensure that there is sufficient
volume to prevent overheating.
19Chapter 3 | System descriptionNIBE SPLIT ACVM270