EasyManua.ls Logo

Nomadix AG 2500 - Installation and Cabling

Nomadix AG 2500
10 pages
Print Icon
To Next Page IconTo Next Page
To Next Page IconTo Next Page
To Previous Page IconTo Previous Page
To Previous Page IconTo Previous Page
Loading...
GATEWAY QUICK START GUIDE
Nomadix Inc. 2
Installation and Cabling
1. Unpack the Nomadix Access Gateway and place the product on a flat and stable work surface.
2. Register the gateway for support services by completing and returning the Nomadix Gateway Registration Form - hardcopy
enclosed or obtain the form online at the following URL: http://www.nomadix.com/registration.html
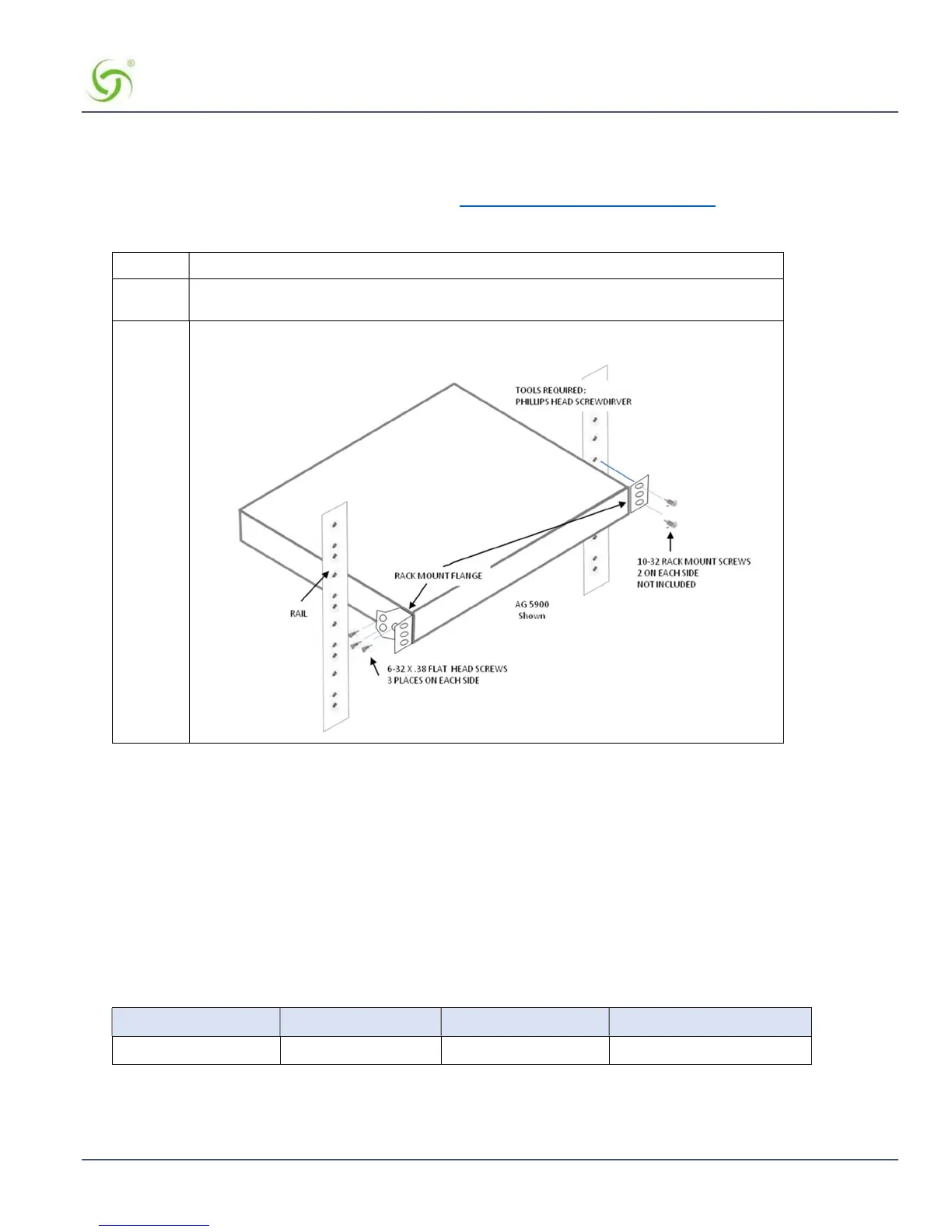
3. Install the Rack Mount brackets to the Nomadix Access Gateway and install in the 19” rack.
AG 5900/EG 6000 (Example)
Step #1 Install the Rack Mounting Flanges to each side of the AG 2500 or AG 5900/EG 6000: using
the 6-32 flat head screws.
Step #2 Using (4) 10-32 rack mounting screws, position the AG in the rack and secure to the vertical
rails.
4. Connect the power cord.
5. For the initial configuration connect to the AG 2500, AG 5900 or EG 6000, either a serial asynchronous connection or
Ethernet connection described below:
Initializing the Gateway
There are (2) methods to initialize/start-up the Gateway, most common is via the WAN Ethernet port or alternatively by using the
asynchronous RJ45 port on the AG 2500 or AG 5900, or the USB the console port on the EG 6000, both configurations are
depicted below:
Ethernet Port Connection
Configure the laptop’s network setting to use the following Administration IP address settings [Table 1].
IP Address Netmask Gateway DNS (if needed)
172.30.30.173 255.255.0.0 172.30.30.172 4.2.2.1
Table 1: Administrative IP address

Related product manuals