EasyManua.ls Logo

Notifier CHG-120 - Trouble and Form-C Relay Connections; Optional Connector Functions; Trouble and Relay Connection Diagram

Notifier CHG-120
28 pages
Print Icon
To Next Page IconTo Next Page
To Next Page IconTo Next Page
To Previous Page IconTo Previous Page
To Previous Page IconTo Previous Page
Loading...
Installing the Charger
20
CHG-120 Instruction Manual 11/06/2002 PN 50641:B1
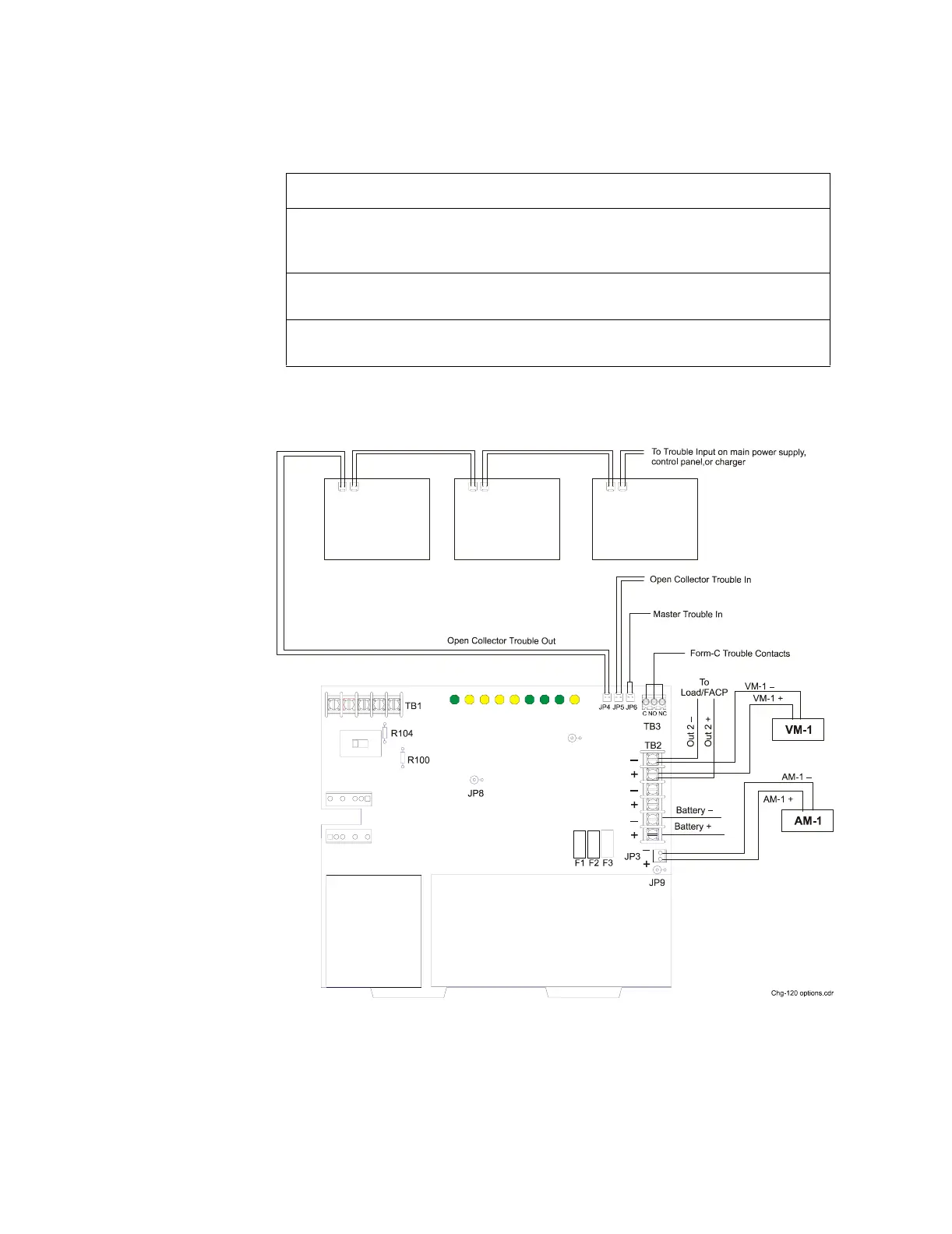
Trouble and Form-C Relay Connections (Optional)
Table 5 contains descriptions of optional connectors on the charger:
Figure 14 shows charger trouble and Form-C relay connections:
Figure 14 Connections for Optional Devices
Function Connector
Use open collector input and output to daisy
chain a trouble signal through the charger
without affecting charger operation.
JP5 Open Collector Trouble In
JP4 Open Collector Trouble Out
Receive trouble signals from another device,
such as a Control Module.
JP6 Master Trouble In
Transmit a charger trouble signal to another
device.
TB3 Form-C Trouble Relay
Table 5 Charger Trouble and Form-C Relay Connections