EasyManua.ls Logo

OHAUS Defender 5000 - Page 231

OHAUS Defender 5000
369 pages
Print Icon
To Next Page IconTo Next Page
To Next Page IconTo Next Page
To Previous Page IconTo Previous Page
To Previous Page IconTo Previous Page
Loading...
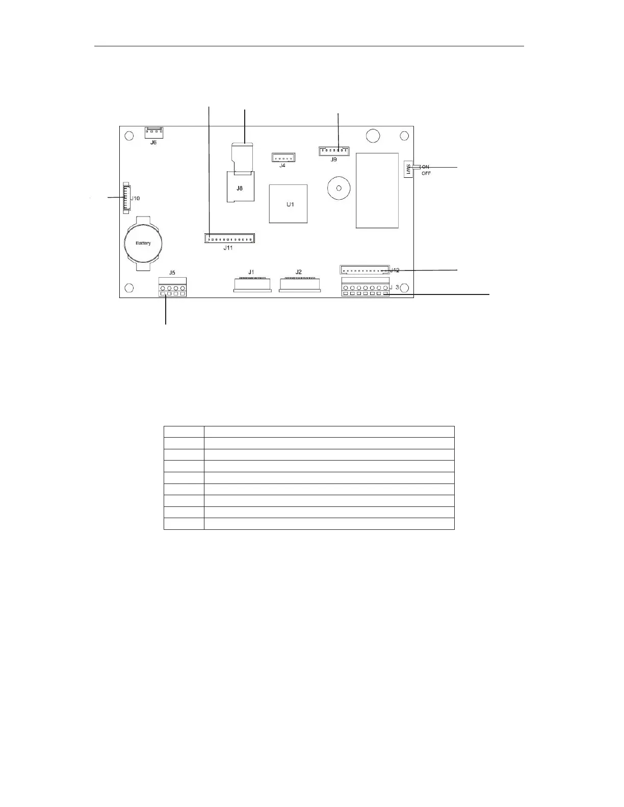
DE-8 Defender 5000 Indikatoren
1.2 Überblick über Teile und Bedienelemente (Forts.)
$EELOGXQJ+DXSWSODWLQH

TABELLE 1-3 Hauptplatine
Artikel
Beschreibung

,2$QDORJ565686%*HUlWHDQVFKOXVV-

0LFUR6'.DUWHQVWHFNSODW]-

$NNX3DFN$QVFKOXVV-

86%+RVW(WKHUQHW$QVFKOXVV-

6LFKHUKHLWVVFKDOWHU6:

:lJH]HOOHQVWHFNHU-

56$QVFKOXVV-

:lJH]HOOHQNOHPPH-








www.GlobalTestSupply.com
Find Quality Products Online at: sales@GlobalTestSupply.com

Table of Contents