EasyManua.ls Logo

OHAUS Defender 5000 - Page 81

OHAUS Defender 5000
369 pages
Print Icon
To Next Page IconTo Next Page
To Next Page IconTo Next Page
To Previous Page IconTo Previous Page
To Previous Page IconTo Previous Page
Loading...
ES-8 Indicadores Defender 5000
1.2 Descripción de las piezas y controles (cont.)
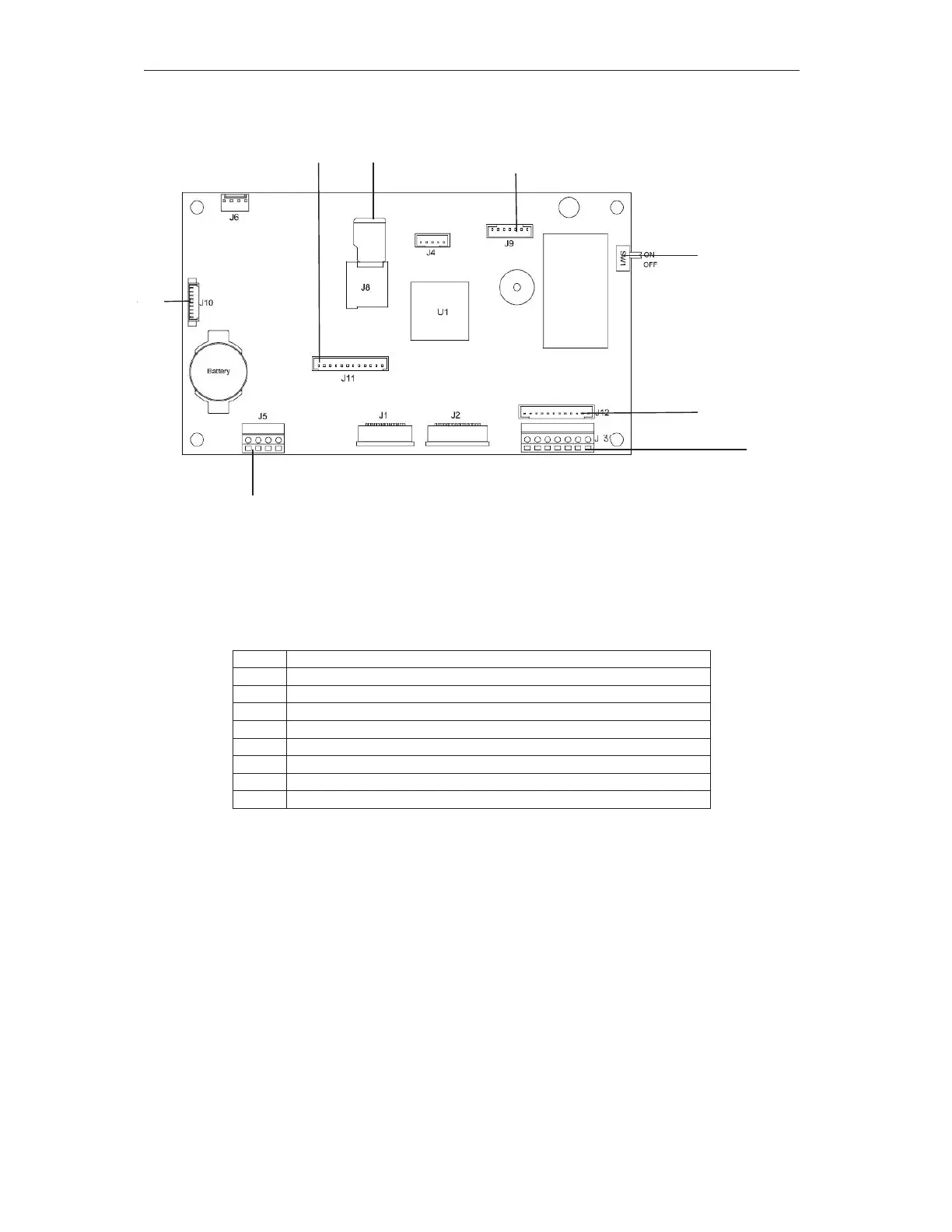
)LJXUD 3DQHOSULQFLSDOGHORUGHQDGRU
TABLA 1-3 PANEL PRINCIPAL DEL ORDENADOR
Pieza
Descripción

&RQHFWRUGHGLVSRVLWLYR,2$QDORJ565686%-

5DQXUDSDUDWDUMHWD0LFUR6'-

&RQHFWRUGHOSDTXHWHGHEDWHUtDUHFDUJDEOH-

&RQHFWRU86%+RVW(WKHUQHW-
,QWHUUXSWRUGHVHJXULGDG6:
&RQHFWRUGHFHOGDGHFDUJD-
&RQHFWRU56-
%ORTXHGHWHUPLQDOHVGHFHOGDGHFDUJD-






www.GlobalTestSupply.com
Find Quality Products Online at: sales@GlobalTestSupply.com

Table of Contents