EasyManua.ls Logo

OHAUS Defender 5000 - Page 9

OHAUS Defender 5000
369 pages
Print Icon
To Next Page IconTo Next Page
To Next Page IconTo Next Page
To Previous Page IconTo Previous Page
To Previous Page IconTo Previous Page
Loading...
EN-8 Defender 5000 Indicators
1.2 Overview of Parts and Controls (Cont.)
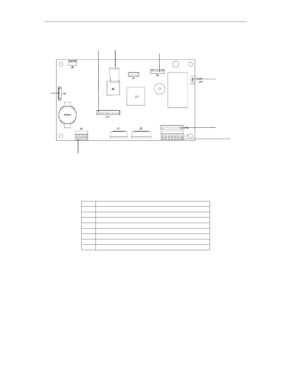
)LJXUH0DLQ3&%RDUG
TABLE 1-3 MAIN PC BOARD
Item
Description
,2$QDORJ565686%'HYLFHFRQQHFWRU-
0LFUR6'&DUGVORW-
5HFKDUJHDEOH%DWWHU\3DFNFRQQHFWRU-
86%+RVW(WKHUQHWFRQQHFWRU-
6HFXULW\6ZLWFK FRQQHFWRU6:
/RDG&HOO FRQQHFWRU -
56 FRQQHFWRU -
/RDG&HOO 7HUPLQDO%ORFN-







www.GlobalTestSupply.com
Find Quality Products Online at: sales@GlobalTestSupply.com

Table of Contents

Other manuals for OHAUS Defender 5000

Related product manuals